$2,700
For Rent
Base rent only. For total monthly price and additional fees, see .
No longer available 9/27/2024
- ft²
5 rooms
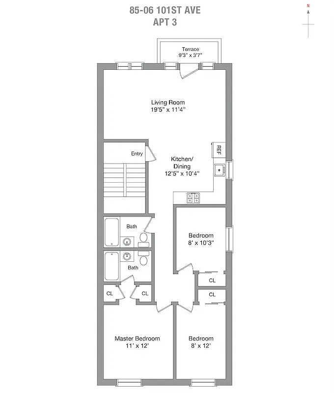
3 beds
2 baths
Three-family home
- Woodhaven
Under NYC law, you can't be charged a broker fee if you didn't hire a broker.
Listed By
This home has been saved by 47 users.
Listing by Keller Williams NYC, Limited Liability Broker, 360 Madison Avenue, New York, NY 10017
Searching with a housing voucher, like Section 8?
Unavailable
No longer available on 9/27/2024
Days on market
10 days
Last price change
No changes
About
Lovely, bright full-floor unit situated in Ozone Park, Queens. Apartment features include stainless steel appliances and marble finishes. You have a private balcony, loft-like ceilings and tons of windows. Each bedroom is spacious with a window and a closet, with one master bedroom with 2 closets and a full bathroom.
You have 24/7 Cherry Valley supermarket one block away, a park two blocks away, and delis on each corner.
Policies
Sorry, policy info isn’t available right now. Check back later.
Home features
Hardwood floors
Private outdoor space
Balcony
Building amenities
No info on building amenities
About the building
85-06 101st Avenue
85-06 101st Avenue, Ozone Park, NY 11416
3 units
3 stories
2002 built
Property history
Prices shown are base rent only. For total monthly price and additional fees, see .
| Date | Base rent | Event |
|---|---|---|
12/27/2024 | $2,700 | No longer available |
9/27/2024 | $2,700 | Temporarily off market |
9/20/2024 | $2,700 | Listed by Keller Williams NYC |
9/2/2024 | $2,700 | Temporarily off market |
8/30/2024 | $2,700 | Listed by Keller Williams NYC |
Past listing photos
Sign in to take a closer look at how this home compares to similar homes.
Explore Woodhaven
Transit
| Location | Distance |
|---|---|
Aat 88th St–Boyd Av | 0.23 miles |
Aat 80th St–Hudson St | 0.25 miles |
Aat Rockaway Blvd | 0.48 miles |
Aat Grant Av | 0.68 miles |
Jat Forest Parkway–85th St | 0.78 miles |
Similar homes
Prices shown are base rent only and don't include any fees. Visit each listing to see a complete cost breakdown.
Similar Homes looks at ad spend and other factors like location, price, and number of beds and baths.

























































































