View this home virtually
$3,995
For Rent
Base rent only. For total monthly price and additional fees, see .
Delisted 3/31/2023
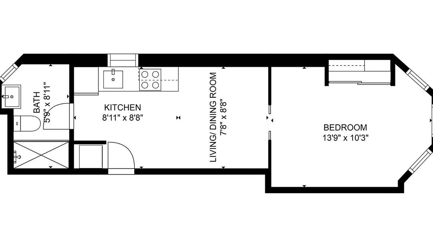
- ft²
4 rooms
1 bed
1 bath
Rental unit
- Brooklyn Heights
Under NYC law, you can't be charged a broker fee if you didn't hire a broker.
Listed By
This home has been saved by 39 users.
Listing by Brighton Management
Unavailable
Delisted on 3/31/2023
Days on market
9 days
Last price change
No changes
About
The Shenley is a brand-new, meticulously redesigned pre-war building located on historic Hicks Street in charming Brooklyn Heights. It preserves its original Italianate architecture with modern amenities, both within the luxurious units and the building. Be the first to live in this unit!
Upon entering your soon-to-be new home, you will realize that all units have been impeccably redone and includes...
Policies
Sorry, policy info isn’t available right now. Check back later.
Home features
Central air
Dishwasher
Hardwood floors
Washer/dryer
Building amenities
Services and facilities
Doorman
Virtual
Storage space
Locker/cage
Wellness and recreation
No info on wellness and recreation
Shared outdoor space
No info on shared outdoor space
About the building
93 Hicks Street
93 Hicks Street, Brooklyn, NY 11201
16 units
4 stories
1900 built
Property history
Prices shown are base rent only. For total monthly price and additional fees, see .
| Date | Base rent | Event |
|---|---|---|
3/31/2023 | $3,995 | Delisted by Brighton Management |
3/22/2023 | $3,995 | Listed by Brighton Management |
Sign in to take a closer look at how this home compares to similar homes.
Explore Brooklyn Heights
Transit
| Location | Distance |
|---|---|
23at Clark St | under 500 feet |
ACat High St | 0.14 miles |
R2345at Borough Hall/Court St | 0.3 miles |
Ferryat Fulton Ferry Landing | 0.31 miles |
Fat York St | 0.42 miles |
About Brooklyn Heights
Rental prices shown are base rent before any fees. Visit listings for cost and fees breakdown.
SalesMedian asking price
1 bed
$795K
RentalsMedian asking base rent
1 bed
$4,660
Brooklyn Heights is known for its gorgeous housing stock and its impressive backdrop. The Promenade is the neighborhood's most celebrated and popular public space, offering just about the best views of the Brooklyn Bridge and the Manhattan skyline that can be found. There, you're likely to find locals walking their Westies, kids zooming around on scooters, and tourists excitedly snapping pics — every one of them savoring the views from this prime perch of a neighborhood.
Learn more about Brooklyn HeightsSimilar homes
Prices shown are base rent only and don't include any fees. Visit each listing to see a complete cost breakdown.
Similar Homes looks at ad spend and other factors like location, price, and number of beds and baths.










































































































