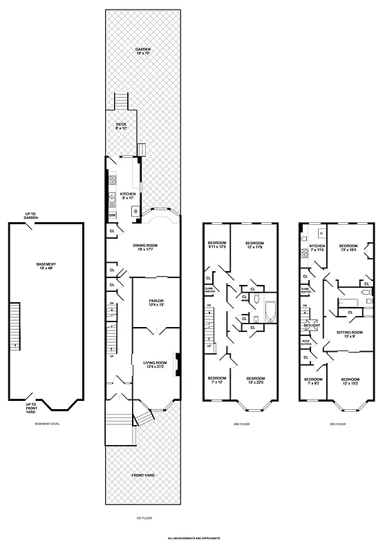
4,480 ft²
$361 per ft²
13 rooms
7 beds
3 baths
Two-family home
- Crown Heights
recorded sale
Sold on 12/1/2017
Verified by closing records
Last listed for $1,895,000
Seller's agents
This home has been saved by 121 users.
Listing by Douglas Elliman, Limited Liability Broker, 187 Seventh Avenue, Brooklyn, NY 11215 | Brokerage Listing ID: 2703903
Common charges
Not applicable
Estimated payment
$9,797/mo
Legal disclaimerAll calculations are estimates provided by StreetEasy for informational purposes only. Actual amounts or financing terms may vary. Please contact your mortgage provider for specifics.Taxes
$303/mo
Tax abatement
No info
About
Seller’s agent
description
Situated in the landmarked Crown Heights Northern Historic District stands 949 St. Johns Place, a sprawling 4,480 SF home boasting seven bedrooms and three bathrooms. This 20' wide legal two family limestone property sits at 50' feet deep on a 20'x130.5' lot and also features a rarely seen front and back garden. Appreciate all of the original prewar details including crown moldings, stained glass, wainscoting, original mantelpieces, ornate inlayed wood floors and beveled mirrors.
Policies
Sorry, policy info isn’t available right now. Check back later.
Home features
Private outdoor space
Garden
Building amenities
Services and facilities
Storage space
Wellness and recreation
No info on wellness and recreation
Shared outdoor space
No info on shared outdoor space
About the building
949 Saint John's Place
949 Saint John'S Place, Brooklyn, NY 11213
2 units
3 stories
1910 built
For sale
0 available units for saleFor rent
0 available units for rentDocuments and permits
View documents and permitsProperty history
- Price Change: ↓ $80,000 (-4.1%) on 5/31/17
- Days on market: 159 daysThis is the number of days the listing has been on StreetEasy.
| Date | Price | Event |
|---|---|---|
12/1/2017 | $1,620,000 | Sold by Douglas Elliman |
9/21/2017 | $1,895,000 | In contract |
9/18/2017 | $1,895,000 | No longer available |
9/12/2017 | $1,895,000 | Listed by Douglas Elliman |
5/31/2017 | $1,895,000 | Price decreased by 4% |
Past listing photos
Sign in to take a closer look at how this home compares to similar homes.
Explore Crown Heights
Transit
| Location | Distance |
|---|---|
3at Nostrand Av | 0.23 miles |
3at Kingston Av | 0.28 miles |
25at President St | 0.32 miles |
LIRRat Nostrand Avenue | 0.46 miles |
S2345at Franklin Av | 0.58 miles |
About Crown Heights
Rental prices shown are base rent before any fees. Visit listings for cost and fees breakdown.
SalesMedian asking price
7 beds
$2.38M
Crown Heights has a lot going on. From the chaotic, commercial avenues of Nostrand and Utica to the wide, tree-lined esplanades of Eastern Parkway, the streets are always filled with locals shopping, catching up on the corner, and keeping tabs on neighbors. Walk down any of these streets and you're likely to find music playing from idling cars and bright Caribbean flags hanging from windows of apartment buildings. Every Labor Day, Crown Heights hosts the West Indian Day Parade, one of the city's largest annual street festivals which draws thousands of people from around the city and the world. The mix of people in such close proximity makes Crown Heights a fascinating microcosm of New York City. Living here, you'll be surrounded by a community with deep roots and rich heritage.
Learn more about Crown Heights















































































































































