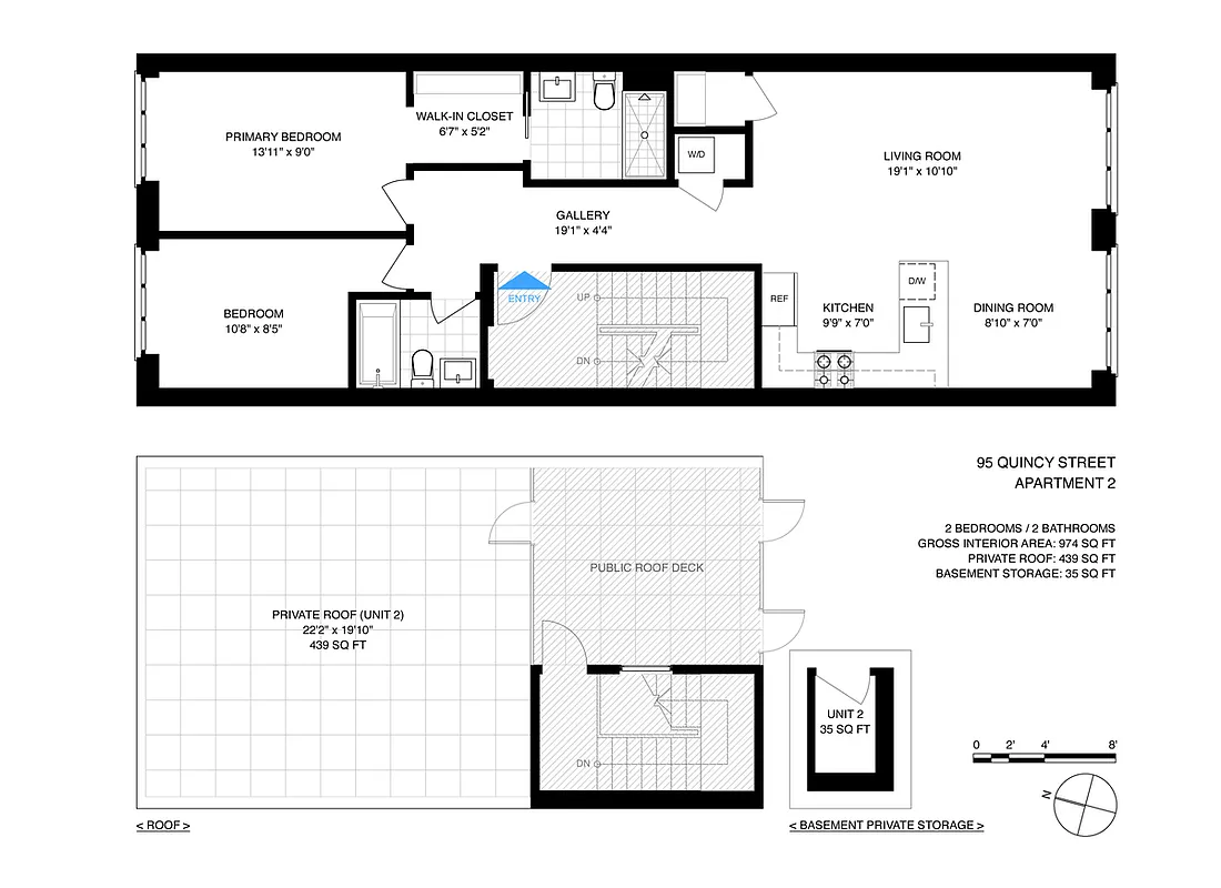
974 ft²
$1,280 per ft²
6 rooms
2 beds
2 baths
Condo
- Bedford-Stuyvesant
Sponsor unit
Sponsor unitA unit being sold for the first time. It’s typically owned by the building. For condos, this is often the developer. For co-ops, this is often the building’s original owner before it went co-op.
recorded sale
Sold on 8/18/2022
Verified by closing records
Last listed for $1,225,000
Seller's agents
This home has been saved by 137 users.
Listing by Douglas Elliman, Limited Liability Broker, 237 Smith Street, Brooklyn, NY 11231 | Brokerage Listing ID: 21535899
Common charges
$330/mo
Estimated payment
$6,555/mo
Legal disclaimerAll calculations are estimates provided by StreetEasy for informational purposes only. Actual amounts or financing terms may vary. Please contact your mortgage provider for specifics.Taxes
$31/mo
Tax abatement
No info
About
Seller’s agent
Buyer’s agent
description
95 Quincy Street, a spectacular new boutique condominium on the hip and historical border of Clinton Hill and Bed-Stuy is ready to call home! This contemporary, architecturally curated collection of homes greets you with distinctive curb appeal and has been constructed inside and out with impeccable finish and design sense.
Residence No. 2 is a generous two-bedroom two-bathroom unit that occupies the entire second floor of the building.
Policies
Pets allowed
Home features
Central air
Dishwasher
Hardwood floors
Private outdoor space
Roof deck
Washer/dryer
Building amenities
Services and facilities
Storage space
Wellness and recreation
No info on wellness and recreation
Shared outdoor space
No info on shared outdoor space
About the building
95 Quincy Street
95 Quincy Street, Brooklyn, NY 11238
6 units
4 stories
2022 built
For sale
0 available units for saleFor rent
0 available units for rentDocuments and permits
View documents and permitsProperty history
- Price Change: ↑ $125,000 (+9.3%) on 3/30/22
- Days on market: 14 daysThis is the number of days the listing has been on StreetEasy.
| Date | Price | Event |
|---|---|---|
8/18/2022 | $1,247,356 | Sold by Douglas Elliman |
3/30/2022 | $1,225,000 | Price increased by 11% |
3/30/2022 | $1,100,000 | In contract |
3/16/2022 | $1,100,000 | Listed by Douglas Elliman |
Past listing photos
Sign in to take a closer look at how this home compares to similar homes.
Explore Bedford-Stuyvesant
Transit
| Location | Distance |
|---|---|
Gat Classon Av | 0.21 miles |
Gat Bedford–Nostrand Avs | 0.23 miles |
ACSat Franklin Av | 0.37 miles |
ASat Franklin Av | 0.38 miles |
Cat Clinton & Washington Avs | 0.44 miles |
About Bedford-Stuyvesant
Rental prices shown are base rent before any fees. Visit listings for cost and fees breakdown.
SalesMedian asking price
2 beds
$1.2M
RentalsMedian asking base rent
2 beds
$3,800
Bedford-Stuyvesant is a vast Brooklyn neighborhood filled with historic brownstones. Fans of Victorian architecture will appreciate the striking abodes in the leafy historic district.
Learn more about Bedford-Stuyvesant






































































































