$19,990
For Rent
Base rent only. For total monthly price and additional fees, see .
Rented 12/27/2016
- ft²
9 rooms
6 beds
7.5 baths
House
- Park Slope
Under NYC law, you can't be charged a broker fee if you didn't hire a broker.
Listed By
This home has been saved by 22 users.
Listing by Dixon Advisory USA Inc., Corporate Broker, 113 Main Street, Irvington, NY 10533
Unavailable
Rented on 12/27/2016
Days on market
75 days
Last price change
↓ $5 (-0.0%) on 11/29/16
About
NO FEE + 2 MO FREE! 1 mo commission paid to cooperating broker.
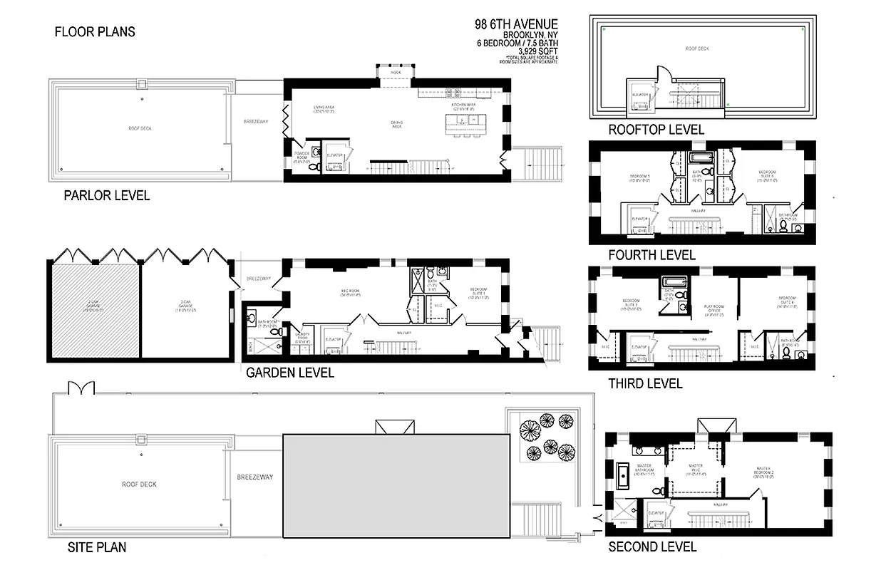
6 Bed | 7.5 Bath | 3,929 SQFT
Gross Rent: $22,845
Net Effective Rent: $19,990 (2 months free on 16-month lease)
Visit the Dixon Leasing website to take a virtual tour of this property!
Spend your nights stargazing from one of two rooftop decks at this palatial Park Slope mansion, complete with a fully restored brownstone façade, two-car garage, private elevator and spectacular views of the surrounding city and Barclay’s Center.
Policies
Sorry, policy info isn’t available right now. Check back later.
Home features
Central air
Dishwasher
Fireplace
Private outdoor space
Terrace
Washer/dryer
Building amenities
Services and facilities
Elevator
Laundry in building
Parking
Garage
Storage space
Wellness and recreation
No info on wellness and recreation
Shared outdoor space
Roof deck
About the building
98 6th Avenue
98 6th Avenue, Brooklyn, NY 11217
1 unit
4 stories
1921 built
Property history
Prices shown are base rent only. For total monthly price and additional fees, see .
| Date | Base rent | Event |
|---|---|---|
12/27/2016 | $19,990 | Rented by Dixon Advisory USA Inc. |
11/29/2016 | $19,990 | Price decreased by 0% |
11/1/2016 | $19,995 | Price decreased by 5% |
11/1/2016 | $20,995 | Price decreased by 2% |
10/13/2016 | $21,330 | Listed by Dixon Advisory USA Inc. |
Past listing photos
Sign in to take a closer look at how this home compares to similar homes.
Explore Park Slope
Transit
| Location | Distance |
|---|---|
23at Bergen St | under 500 feet |
BQat 7th Av | 0.2 miles |
LIRRat Atlantic Terminal | 0.29 miles |
BDNQR2345at Atlantic Av–Barclays Ctr | 0.34 miles |
23at Grand Army Plaza | 0.37 miles |
About Park Slope
Rental prices shown are base rent before any fees. Visit listings for cost and fees breakdown.
SalesMedian asking price
6 beds
$4.65M
Park Slope has a tranquil, easygoing vibe and can almost feel suburban. Strollers and children of all ages are a constant presence on sidewalks, as are shoppers patronizing local boutiques and dog walkers heading up to the park. Residents are Brooklynites through and through and tend to be socially conscious, artistically minded, and committed to their community. At night, a casual restaurant scene comes alive. For anyone looking for a night out, there are plenty of beer gardens and wine bars to patronize, especially in the South Slope, but don't go looking for dance clubs.
Learn more about Park SlopeSimilar homes
Prices shown are base rent only and don't include any fees. Visit each listing to see a complete cost breakdown.
Similar Homes looks at ad spend and other factors like location, price, and number of beds and baths.



























































































































































