$2,395,000
For Sale
- ft²
4 rooms
2 beds
3 baths
Co-op
- Greenwich Village
Resale
Listing by Brown Harris Stevens, Real Estate Principal Office, 100 Fifth Avenue, New York, NY 10011
Listing updated in the last 2 days
Maintenance fees
$3,629/mo
Estimated payment
$15,520/mo
Legal disclaimerAll calculations are estimates provided by StreetEasy for informational purposes only. Actual amounts or financing terms may vary. Please contact your mortgage provider for specifics.Taxes
Included in maintenance fees
Tax abatement
No info
About
Seller’s agent
description
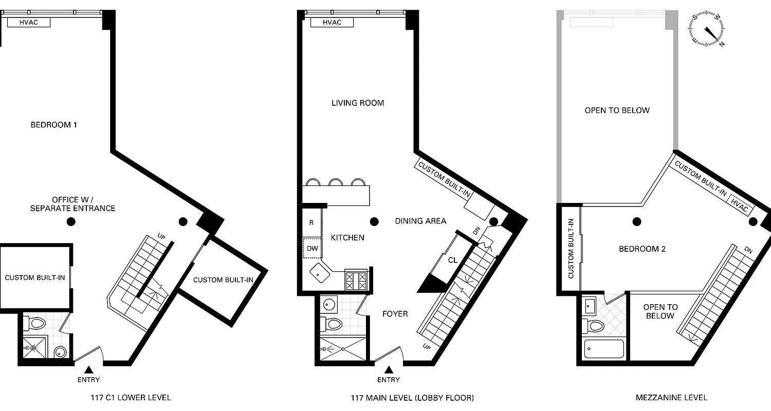
RARE TRIPLE-LEVEL LOFT with PRIVATE OFFICE, 3 FULL BATHS and DOUBLE-HEIGHT CEILINGS
Discover an architectural masterpiece across three dramatic levels. This extraordinary triplex balances soaring volumes with refined sophistication, offering a seamless flow of light and space in Greenwich Village. This sun-drenched 2-bedroom (convertible 3-bedroom) home features a rare, flexible layout designed for...
Policies
Pets allowed
Cats and dogs allowed
Home features
Dishwasher
Hardwood floors
View
City, Garden
Open house
Preview the home in person and gather the details you need — no pressure.
11:30 AM–12:30 PM ET
Building amenities
Services and facilities
Bike room
Concierge
Doorman
Full-time
Elevator
Laundry in building
Live-in super
Storage space
Wheelchair access
Wellness and recreation
No info on wellness and recreation
Shared outdoor space
Courtyard
About the building
Bleecker Court
77 Bleecker Street, New York, NY 10012
243 units
14 stories
1930 built
For sale
11 available units for saleFor rent
1 available units for rentDocuments and permits
View documents and permitsProperty history
- Price Change: No changes
- Days on market: Listed todayThis is the number of days the listing has been on StreetEasy.
| Date | Price | Event |
|---|---|---|
3/5/2026 | $2,395,000 | Listed by Brown Harris Stevens |
Sign in to take a closer look at how this home compares to similar homes.
Explore Greenwich Village
Transit
| Location | Distance |
|---|---|
BDFM6at Bleecker St | under 500 feet |
BDFM6at Broadway–Lafayette St | 0.11 miles |
RWat Prince St | 0.22 miles |
RWat 8th St–NYU | 0.23 miles |
6at Astor Place | 0.31 miles |
About Greenwich Village
Rental prices shown are base rent before any fees. Visit listings for cost and fees breakdown.
SalesMedian asking price
2 beds
$2.7M
RentalsMedian asking base rent
2 beds
$6,200
Greenwich Village perfectly combines a bit of the East Village's glorified grunge with a bit of the West Village's tony charm. The birthplace of the beatnik movement and home to NYU, the neighborhood offers something for all its eclectic residents. You'll find new restaurants, indie movie theaters and comedy clubs around the corner from quiet blocks full of big brownstones and well-kept window boxes. Whether it's a 24-hour falafel joint, a dark downstairs bar, or upscale furniture shops, the neighborhood appeals to anyone who relishes the culture, history and activity of the city.
Learn more about Greenwich Village































































































































