$3,795,000
For Sale
Temporarily off market 11/10/2025
1,830 ft²
$2,073 per ft²
7 rooms
2 beds
2 baths
Condo
- Chelsea
Resale
Seller's agent
This home has been saved by 37 users.
Listing by Fionn Campbell, Individual Broker, 252 Seventh Avenue, New York, NY 10001
Common charges
$1,672/mo
Estimated payment
$24,292/mo
Legal disclaimerAll calculations are estimates provided by StreetEasy for informational purposes only. Actual amounts or financing terms may vary. Please contact your mortgage provider for specifics.Taxes
$3,080/mo
Tax abatement
No info
About
Seller’s agent
description
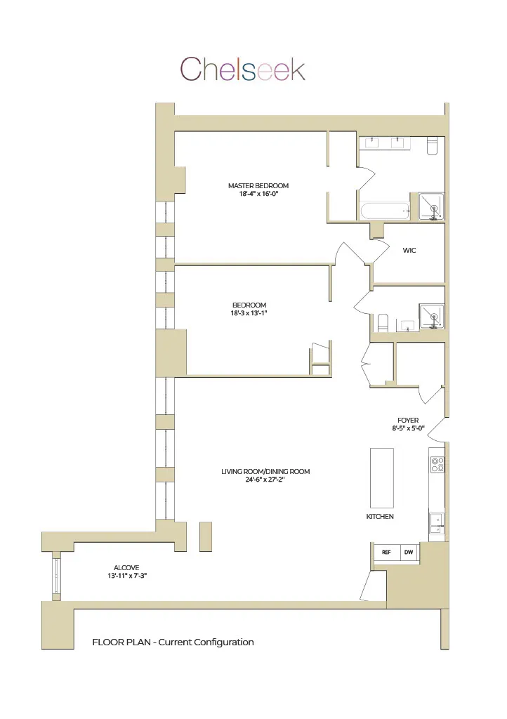
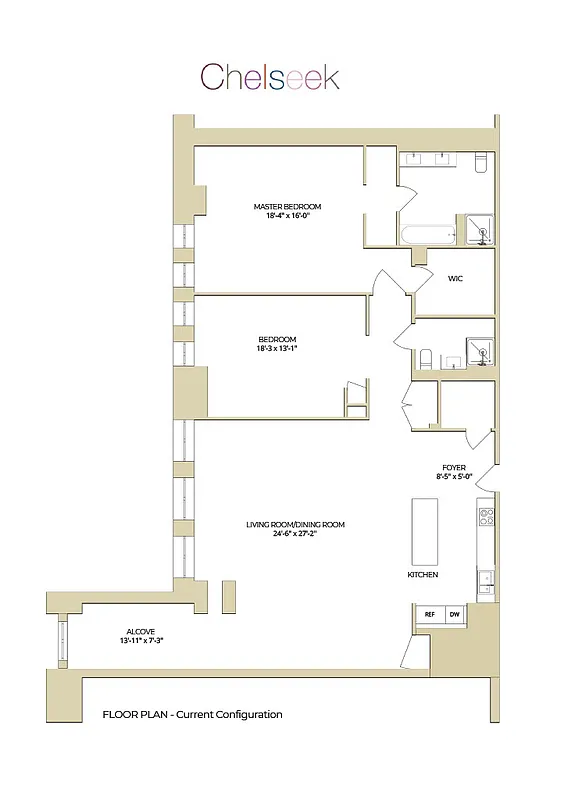
This high floor 3 bedroom w/ home office has been converted to a stunning 2 bedroom with library.
( See the original and current floor plans attached).
Loft 17-O was originally configured as a 3 bedroom with home office and 2.5 baths. The space has since been transformed into a dramatic 2 bedroom/ with library and 2 full baths. The architectural brief was to create larger bedrooms and a grander entertaining space which would house an established art collection.
Policies
Pets allowed
Cats and dogs allowed
Home features
Dishwasher
Hardwood floors
View
Skyline, Water
Washer/dryer
Building amenities
Services and facilities
Concierge
Doorman
Full-time
Elevator
Live-in super
Package room
Parking
Garage
Storage space
Cold storage, Locker/cage
Wellness and recreation
Children's playroom
Gym
Shared outdoor space
Roof deck
About the building
Chelsea Mercantile
252 7th Avenue, New York, NY 10001
352 units
19 stories
1910 built
For sale
10 available units for saleFor rent
4 available units for rentDocuments and permits
View documents and permitsProperty history
- Price Change: ↓ $100,000 (-2.6%) on 9/15/25
- Days on market: 249 daysThis is the number of days the listing has been on StreetEasy.
| Date | Price | Event |
|---|---|---|
11/10/2025 | $3,795,000 | Temporarily off market |
9/15/2025 | $3,795,000 | Price decreased by 3% |
5/7/2025 | $3,895,000 | Price decreased by 6% |
3/6/2025 | $4,125,000 | Listed by Fionn Campbell |
10/17/2024 | $3,995,000 |
Sign in to take a closer look at how this home compares to similar homes.
Explore Chelsea
Transit
| Location | Distance |
|---|---|
1at 23rd St | under 500 feet |
CEat 23rd St | 0.12 miles |
1at 28th St | 0.17 miles |
FMat 23rd St | 0.2 miles |
PATHat 23rd Street Station | 0.22 miles |
About Chelsea
Rental prices shown are base rent before any fees. Visit listings for cost and fees breakdown.
SalesMedian asking price
2 beds
$2.28M
RentalsMedian asking base rent
2 beds
$8,295
If you're looking for a staid, quiet place to live, Chelsea is not for you. Its thriving arts scene has always been a big draw for creative types. Not surprisingly, residents pay a high price to live in such a hip and happening part of Manhattan. The neighborhood has some of the most exclusive restaurants and bars in the city, and real estate prices are steep — especially for new condos along the High Line.
Slip down many of the side streets, however, and you're likely to find some beautiful and historic townhouses nestled gracefully within the neighborhood's hustle and bustle.













































































































































































