1,140 ft²
$1,248 per ft²
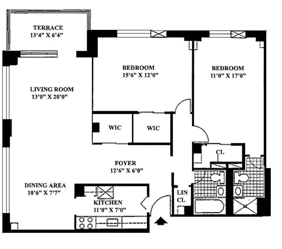
5 rooms
2 beds
2 baths
Condo
- Upper West Side
Resale
recorded sale
Sold on 8/29/2023
Verified by closing records
Last listed for $1,495,000
Seller's agent
This home has been saved by 243 users.
Listing by Brown Harris Stevens, Real Estate Principal Office, 1934 Broadway, New York, NY 10023
Common charges
$787/mo
Estimated payment
$9,130/mo
Legal disclaimerAll calculations are estimates provided by StreetEasy for informational purposes only. Actual amounts or financing terms may vary. Please contact your mortgage provider for specifics.Taxes
$759/mo
Tax abatement
J-51 expires in 2028
About
Seller’s agent
Buyer’s agent
description
2BD 2bth w/ Private Terrace
RARELY AVAILABLE open Southern and Eastern exposures right near Central Park! Flooded with bright natural light this generous sized 2 bedroom/2 bathroom has it's own private balcony off your living room to enjoy the peacefulness and solitude surrounded by trees. The living room is perfect for entertaining and features a separate dining area which can easily be converted to another room to fit your needs.
Policies
Sorry, policy info isn’t available right now. Check back later.
Home features
Dishwasher
Hardwood floors
Private outdoor space
Terrace
View
City, Garden, Park
Building amenities
Services and facilities
Bike room
Concierge
Doorman
Full-time
Elevator
Laundry in building
Package room
Parking
Storage space
Wheelchair access
Wellness and recreation
Gym
Shared outdoor space
Courtyard
About the building
CPW Towers
392 Central Park West, New York, NY 10025
413 units
19 stories
1960 built
For sale
1 available units for saleFor rent
1 available units for rentDocuments and permits
View documents and permitsProperty history
- Price Change: ↓ $100,000 (-6.3%) on 3/20/23
- Days on market: 250 daysThis is the number of days the listing has been on StreetEasy.
| Date | Price | Event |
|---|---|---|
8/29/2023 | $1,423,000 | Sold by Brown Harris Stevens |
6/26/2023 | $1,495,000 | In contract |
3/20/2023 | $1,495,000 | Price decreased by 6% |
10/19/2022 | $1,595,000 | Listed by Brown Harris Stevens |
8/2/2006 | $925,000 |
Past listing photos
Sign in to take a closer look at how this home compares to similar homes.
Explore Upper West Side
Transit
| Location | Distance |
|---|---|
BCat 96th St | 0.13 miles |
BCat 103rd St | 0.22 miles |
123at 96th St | 0.37 miles |
1at 103rd St | 0.37 miles |
BCat Cathedral Parkway–110th St | 0.5 miles |
About Upper West Side
Rental prices shown are base rent before any fees. Visit listings for cost and fees breakdown.
SalesMedian asking price
2 beds
$1.66M
RentalsMedian asking base rent
2 beds
$6,200
Sandwiched between two beautiful parks, the Upper West Side is one of the greenest spots in Manhattan. For that reason, it is a perennial favorite. The Upper West Side is relaxed, but never dull. There are plenty of low-key bars and restaurants to frequent along Amsterdam Avenue, and Broadway is an always-bustling commercial center. The wide, tree-lined streets still boast many mom-and-pop stores. Less posh than the Upper East Side, it is more easily accessible by public transportation, and real estate prices are just as, if not more, expensive.
Learn more about Upper West Side



























































































































