View this home virtually
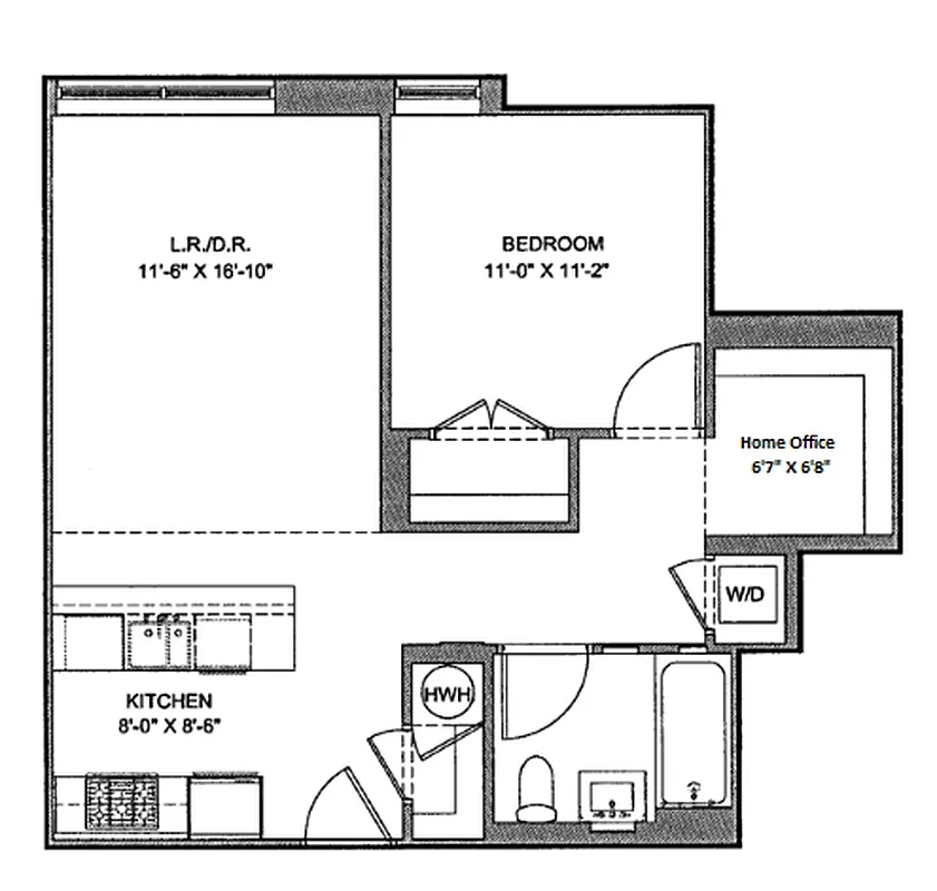
703 ft²
$1,386 per ft²
3 rooms
1 bed
1 bath
Condo
- Hunters Point
Resale
recorded sale
Sold on 9/29/2025
Verified by closing records
Last listed for $995,000
Seller's agent
This home has been saved by 50 users.
Listing by Brown Harris Stevens, Real Estate Principal Office, 129 Montague Street, Brooklyn, NY 11201
Common charges
$882/mo
Estimated payment
$6,490/mo
Legal disclaimerAll calculations are estimates provided by StreetEasy for informational purposes only. Actual amounts or financing terms may vary. Please contact your mortgage provider for specifics.Taxes
$766/mo
Tax abatement
No info
About
Seller’s agent
Buyer’s agent
description
Unique Large One Bedroom with Home Office/Flex Space
Unit 407 is a large 1-bedroom with a unique flex space. Currently configured as extra-large walk-in closet, this smartly designed additional space can easily turn into a home office or workout area. This elegantly designed home is pin-drop quiet with ample living and dining space. The full marble bathroom, extra-large kitchen island, in-unit Bosch washer/dryer, and 10’ ceiling height complete this beautiful home.
Policies
Sorry, policy info isn’t available right now. Check back later.
Home features
Central air
Dishwasher
Hardwood floors
Washer/dryer
Building amenities
Services and facilities
Bike room
Concierge
Doorman
Elevator
Live-in super
Package room
Parking
Garage
Wellness and recreation
Children's playroom
Gym
Swimming pool
Shared outdoor space
Courtyard
Roof deck
About the building
GALERIE
22-18 Jackson Avenue, Long Island City, NY 11101
182 units
11 stories
2018 built
For sale
4 available units for saleFor rent
0 available units for rentDocuments and permits
View documents and permitsProperty history
- Price Change: No changes
- Days on market: 69 daysThis is the number of days the listing has been on StreetEasy.
| Date | Price | Event |
|---|---|---|
9/29/2025 | $975,000 | Sold by Brown Harris Stevens |
7/1/2025 | $995,000 | In contract |
4/23/2025 | $995,000 | Listed by Brown Harris Stevens |
7/25/2019 | $863,671 | |
7/30/2019 | $845,000 |
Past listing photos
Sign in to take a closer look at how this home compares to similar homes.
Explore Hunters Point
Transit
| Location | Distance |
|---|---|
Gat 21st St | under 500 feet |
EGM7at 45 Rd–Court House Sq | 0.12 miles |
Gat Long Island City–Court Square | 0.14 miles |
LIRRat Hunterspoint Avenue | 0.17 miles |
7at Hunters Point | 0.18 miles |













































































































