- ft²
7 rooms
4 beds
2 baths
Co-op
- Forest Hills
Resale
recorded sale
Sold on 11/11/2015
Verified by closing records
Last listed for $835,000
Seller's agent
This home has been saved by 19 users.
Listing by SBNY RE, Limited Liability Broker, 1239 Route 25a Suite 7, Stony Brook, NY 11790
Maintenance fees
$2,033/mo
Estimated payment
$6,197/mo
Taxes
Included in maintenance fees
Tax abatement
No info
About
Seller’s agent
Buyer’s agent
description
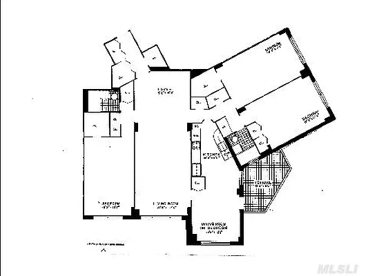
GERARD TOWERS: Full 3 Bedroom convertible to 4 Bedroom Home with Lower Manhattan and Forest Hills Gardens Views. Gerard Towers Offers a 24 Hour Doorman, Seasonal Heated Pool, Immediate Valet Parking, Sauna Rooms, Bike Rooms & Kids Play room, Just Around The Corner From AUstin Street and steps to Express Transportation and Shopping! This Home is Offered In It's As Is Condition.
Policies
Co-purchase allowed
Gifts allowed
Parents buying allowed
Home features
Central air
Dishwasher
Private outdoor space
Terrace
Building amenities
Services and facilities
Bike room
Doorman
Elevator
Laundry in building
Live-in super
Package room
Storage space
Wellness and recreation
Children's playroom
Gym
Swimming pool
Shared outdoor space
No info on shared outdoor space
About the building
Gerard Towers
70-25 Yellowstone Boulevard, Forest Hills, NY 11375
563 units
24 stories
1965 built
For sale
12 available units for saleFor rent
1 available units for rentDocuments and permits
View documents and permitsProperty history
- Price Change: ↑ $36,000 (+4.5%) on 11/19/14
- Days on market: 206 days
| Date | Price | Event |
|---|---|---|
11/11/2015 | $860,000 | Sold by SBNY RE |
6/13/2015 | $835,000 | In contract |
11/19/2014 | $835,000 | Price increased by 5% |
11/19/2014 | $799,000 | Listed by SBNY RE |
8/20/2014 | $799,000 | In contract |
Past listing photos
Sign in to take a closer look at how this home compares to similar homes.
Explore Forest Hills
Transit
| Location | Distance |
|---|---|
EFMRat Forest Hills–71st Av | 0.21 miles |
LIRRat Forest Hills | 0.28 miles |
MRat 67th Av | 0.32 miles |
EFat 75th Av | 0.62 miles |
MRat 63rd Drive–Rego Park | 0.79 miles |
About Forest Hills
Rental prices shown are base rent before any fees. Visit listings for cost and fees breakdown.
SalesMedian asking price
4 beds
$1.79M
RentalsMedian asking base rent
4 beds
$6,400
Bisected by Queens Boulevard, Forest Hills offers two types of city living: Urban apartment complexes on one side and the other, the storied Forest Hills Gardens. Whichever side of the boulevard you live on, this suburban neighborhood is teeming with lots of public outdoor space. Another good to know, many residents own a car.
Learn more about Forest Hills































































































































































