- ft²
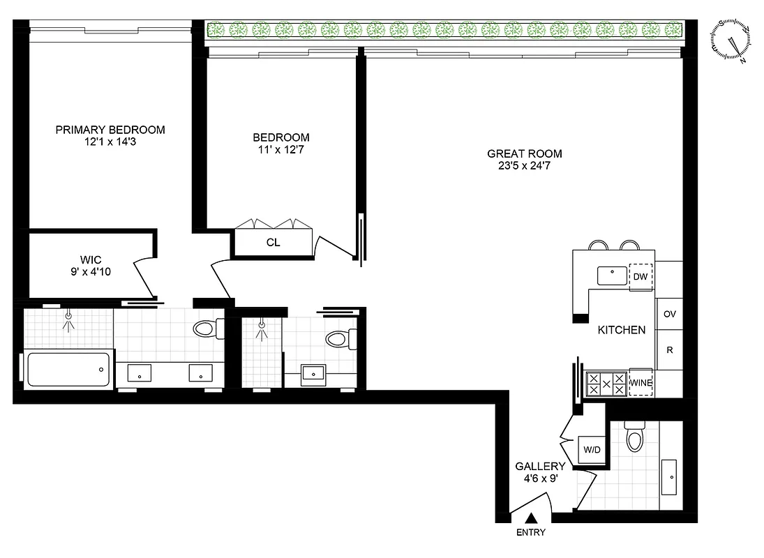
4 rooms
2 beds
2.5 baths
Condo
- West Chelsea
Resale
reported sale
Sold on 10/6/2022
Not yet verified by closing records
Seller's agents
This home has been saved by 35 users.
Listing by Brown Harris Stevens, Real Estate Principal Office, 445 Park Avenue, New York, NY 10022
Common charges
$1,943/mo
Estimated payment
$21,473/mo
Legal disclaimerAll calculations are estimates provided by StreetEasy for informational purposes only. Actual amounts or financing terms may vary. Please contact your mortgage provider for specifics.Taxes
$2,351/mo
Tax abatement
No info
About
Seller’s agent
description
BEST DEAL DOWNTOWN! One of the few resales at the Jardim Condominium in West Chelsea, built as a ground-up new development in 2019 by award winning Brazilian architect, Isay Weinfeld. This very lightly lived-in home is being sold at a tremendous discount and is a terrific investment property, pied-a-terre or full-time residence for the savvy buyer looking to take advantage of a rare opportunity in the current Manhattan Market.
Policies
Sorry, policy info isn’t available right now. Check back later.
Home features
Central air
Dishwasher
Private outdoor space
Balcony
View
City, Skyline
Washer/dryer
Building amenities
Services and facilities
Bike room
Doorman
Elevator
Laundry in building
Live-in super
Parking
Garage
Storage space
Wellness and recreation
Children's playroom
Swimming pool
Shared outdoor space
Courtyard
Garden
About the building
Jardim
527 West 27th Street, New York, NY 10001
36 units
11 stories
2019 built
For sale
0 available units for saleFor rent
2 available units for rentDocuments and permits
View documents and permitsProperty history
- Price Change: No changes
- Days on market: 42 daysThis is the number of days the listing has been on StreetEasy.
| Date | Price | Event |
|---|---|---|
10/6/2022 | $3,100,000 | Sold by Brown Harris Stevens |
8/16/2022 | $3,100,000 | In contract |
7/5/2022 | $3,100,000 | Listed by Brown Harris Stevens |
Past listing photos
Sign in to take a closer look at how this home compares to similar homes.
Explore West Chelsea
Transit
| Location | Distance |
|---|---|
7at 34 St Hudson Yards | 0.29 miles |
CEat 23rd St | 0.42 miles |
123ACEat 34th St–Penn Station | 0.49 miles |
LIRRat Penn Station | 0.52 miles |
1at 28th St | 0.58 miles |

















































































































































































































































































