- ft²
3 rooms
1 bed
1 bath
Co-op
- Lincoln Square
recorded sale
Sold on 8/12/2015
Verified by closing records
Last listed for $785,000
Seller's agents
This home has been saved by 31 users.
Listing by Halstead Real Estate, 770 Lexington Avenue, New York, NY 10065 | MLS #: 11877040
Maintenance fees
$1,483/mo
Estimated payment
$5,452/mo
Legal disclaimerAll calculations are estimates provided by StreetEasy for informational purposes only. Actual amounts or financing terms may vary. Please contact your mortgage provider for specifics.Taxes
Included in maintenance fees
Tax abatement
No info
About
Sellerâs agent
Buyerâs agent
description
Contract Signed.
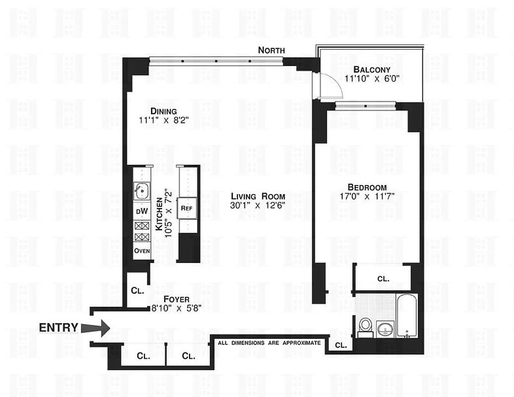
Tree-Top View Jr 4
Large Lincoln Tower one bedroom with balcony. The door of this apartment opens into space: closet space, foyer space, wall space, living, dining and bedroom space and every inch is useable. The classic layout has pure potential, convert the windowed dining alcove, open the kitchen, create a home office nook. This line has a balcony and every window faces trees in the gardens
Policies
Co-purchase allowed
Guarantors accepted
Pets allowed
Cats and dogs allowed
Pied-a-terre allowed
Sublets allowed
Home features
Central air
Private outdoor space
Balcony, Garden
Building amenities
Services and facilities
Bike room
Concierge
Doorman
Full-time
Elevator
Laundry in building
Live-in super
Parking
Garage
Storage space
Wellness and recreation
Gym
Shared outdoor space
Garden
About the building
Lincoln Towers
140 West End Avenue, New York, NY 10023
561 units
29 stories
1964 built
For sale
6 available units for saleFor rent
0 available units for rentDocuments and permits
View documents and permitsProperty history
- Price Change: No changes
- Days on market: 28 daysThis is the number of days the listing has been on StreetEasy.
| Date | Price | Event |
|---|---|---|
8/12/2015 | $825,000 | Sold by Halstead Real Estate |
8/11/2015 | $785,000 | No longer available |
3/21/2015 | $785,000 | In contract |
2/20/2015 | $785,000 | Listed by Halstead Real Estate |
Past listing photos
Sign in to take a closer look at how this home compares to similar homes.
Explore Lincoln Square
Transit
| Location | Distance |
|---|---|
1at 66th StâLincoln Center | 0.24 miles |
123at 72nd St | 0.29 miles |
BCat 72nd St | 0.48 miles |
ABCD1at 59th StâColumbus Circle | 0.49 miles |
1at 79th St | 0.63 miles |
About Lincoln Square
Rental prices shown are base rent before any fees. Visit listings for cost and fees breakdown.
SalesMedian asking price
1 bed
$975K
RentalsMedian asking base rent
1 bed
$5,500
Named after and defined by the Lincoln Center for the Performing Arts, Lincoln Square is home to the New York Philharmonic, the New York City Ballet and the Metropolitan Opera, among many other cultural institutions. The neighborhood blends the prewar architecture and and style of the Upper West Side with modern, tall residential buildings. Great subway access at Columbus Circle and proximity to Midtown make this neighborhood popular with those looking to be in the center of it all.
Learn more about Lincoln Square


















































































