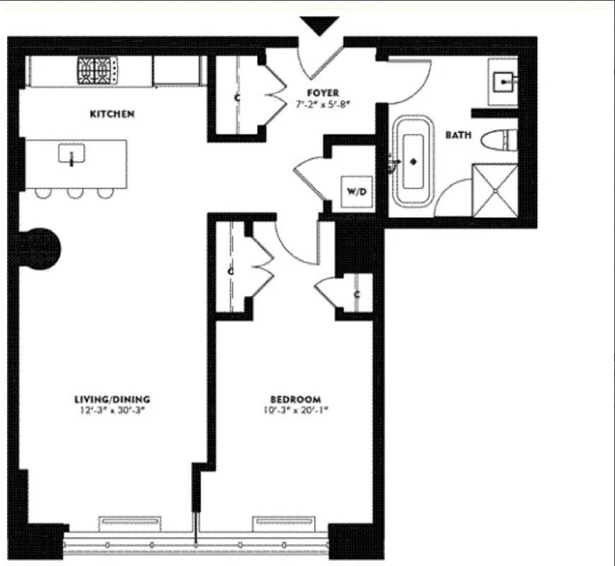
885 ft²
$1,073 per ft²
3 rooms
1 bed
1 bath
Condo
- Brooklyn Heights
Resale
recorded sale
Sold on 11/25/2024
Verified by closing records
Last listed for $995,000
Seller's agents
This home has been saved by 80 users.
Listing by Compass, Corporate Broker, 110 5th Avenue, New York, NY 10011
Common charges
$1,171/mo
Estimated payment
$7,670/mo
Legal disclaimerAll calculations are estimates provided by StreetEasy for informational purposes only. Actual amounts or financing terms may vary. Please contact your mortgage provider for specifics.Taxes
$839/mo
Tax abatement
No info
About
Seller’s agent
Buyer’s agent
description
THE ONLY ONE BEDROOM UNDER $1M! Brooklyn Heights Waterfront | Loft-Condo | 1 Bed 1 Bath | 13' Ceilings
Apt Features:
• Spacious Loft Design
• Soaring 13' Ceilings
• Solid Oak Floors
• Oversized Windows with Northwestern Exposure
• Courtyard and partial water views of Manhattan and the Brooklyn Bridge.
• Living space and Bedroom are bathed in gorgeous natural light.
Policies
Sorry, policy info isn’t available right now. Check back later.
Home features
Central air
Dishwasher
Hardwood floors
View
City, Garden, Park, Water
Washer/dryer
Building amenities
Services and facilities
Bike room
Concierge
Doorman
Full-time
Elevator
Laundry in building
Live-in super
Package room
Parking
Garage
Storage space
Cold storage, Locker/cage
Wellness and recreation
Children's playroom
Gym
Media room
Shared outdoor space
Courtyard
About the building
One Brooklyn Bridge Park
360 Furman Street, Brooklyn, NY 11201
435 units
12 stories
1928 built
For sale
9 available units for saleFor rent
6 available units for rentDocuments and permits
View documents and permitsProperty history
- Price Change: ↓ $55,000 (-5.2%) on 6/30/24
- Days on market: 141 daysThis is the number of days the listing has been on StreetEasy.
| Date | Price | Event |
|---|---|---|
11/25/2024 | $950,000 | Sold by Compass |
8/27/2024 | $995,000 | In contract |
6/30/2024 | $995,000 | Price decreased by 5% |
6/7/2024 | $1,050,000 | Price decreased by 5% |
4/8/2024 | $1,100,000 | Listed by Compass |
Past listing photos
Sign in to take a closer look at how this home compares to similar homes.
Explore Brooklyn Heights
Transit
| Location | Distance |
|---|---|
R2345at Borough Hall/Court St | 0.39 miles |
23at Clark St | 0.46 miles |
ACat High St | 0.62 miles |
ACFRat Jay St–MetroTech | 0.67 miles |
FGat Bergen St | 0.68 miles |
About Brooklyn Heights
Rental prices shown are base rent before any fees. Visit listings for cost and fees breakdown.
SalesMedian asking price
1 bed
$775K
RentalsMedian asking base rent
1 bed
$4,660
Brooklyn Heights is known for its gorgeous housing stock and its impressive backdrop. The Promenade is the neighborhood's most celebrated and popular public space, offering just about the best views of the Brooklyn Bridge and the Manhattan skyline that can be found. There, you're likely to find locals walking their Westies, kids zooming around on scooters, and tourists excitedly snapping pics — every one of them savoring the views from this prime perch of a neighborhood.
Learn more about Brooklyn Heights

























































































































