$4,500
For Rent
Base rent only. For total monthly price and additional fees, see .
No longer available 5/31/2022
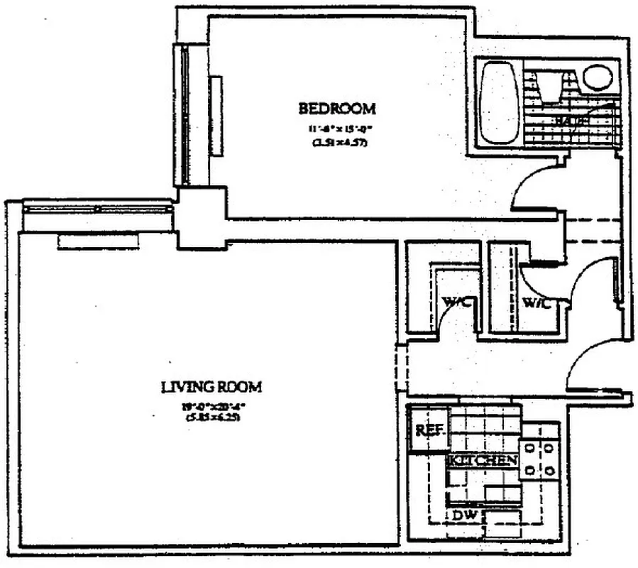
847 ft²
$63 per ft²
3 rooms
1 bed
1 bath
Condo
- Carnegie Hill
Under NYC law, you can't be charged a broker fee if you didn't hire a broker.
Listed By
This home has been saved by 70 users.
Listing by T&T Real Estate, Corporate Broker, 501 Fifth Avenue, New York, NY 10017
Unavailable
No longer available on 5/31/2022
Days on market
48 days
Last price change
No changes
About
PARK AVENUE COURT FOR RENT!!! Large 1 Bedroom 1 Bath with 13 foot ceilings Condominium on 16th Floor. Park Avenue Court is one of the most Luxurious white glove full service condominiums on the Heart of Upper East Side. Amenities including full time doorman & concierge, recently renovated full service gym and large swimming pool, yoga studio, children’s playroom, parking garage and common outdoor terraces.
Policies
Pets allowed
Cats and dogs allowed
Home features
Central air
Dishwasher
Building amenities
Services and facilities
Bike room
Doorman
Full-time
Elevator
Live-in super
Parking
Wellness and recreation
Children's playroom
Gym
Swimming pool
Shared outdoor space
No info on shared outdoor space
About the building
Park Avenue Court
120 East 87th Street, New York, NY 10128
219 units
17 stories
1981 built
Property history
Prices shown are base rent only. For total monthly price and additional fees, see .
| Date | Base rent | Event |
|---|---|---|
8/30/2022 | $4,500 | No longer available |
5/31/2022 | $4,500 | Temporarily off market |
4/13/2022 | $4,500 | Listed by T&T Real Estate |
7/30/2019 | $4,200 | |
3/8/2019 | $4,200 |
Past listing photos
Sign in to take a closer look at how this home compares to similar homes.
Explore Carnegie Hill
Transit
| Location | Distance |
|---|---|
456at 86th St | under 500 feet |
Qat 86th St | 0.27 miles |
Qat 96th St | 0.43 miles |
6at 96th St | 0.45 miles |
6at 77th St | 0.5 miles |
Similar homes
Prices shown are base rent only and don't include any fees. Visit each listing to see a complete cost breakdown.
Similar Homes looks at ad spend and other factors like location, price, and number of beds and baths.
















































































































