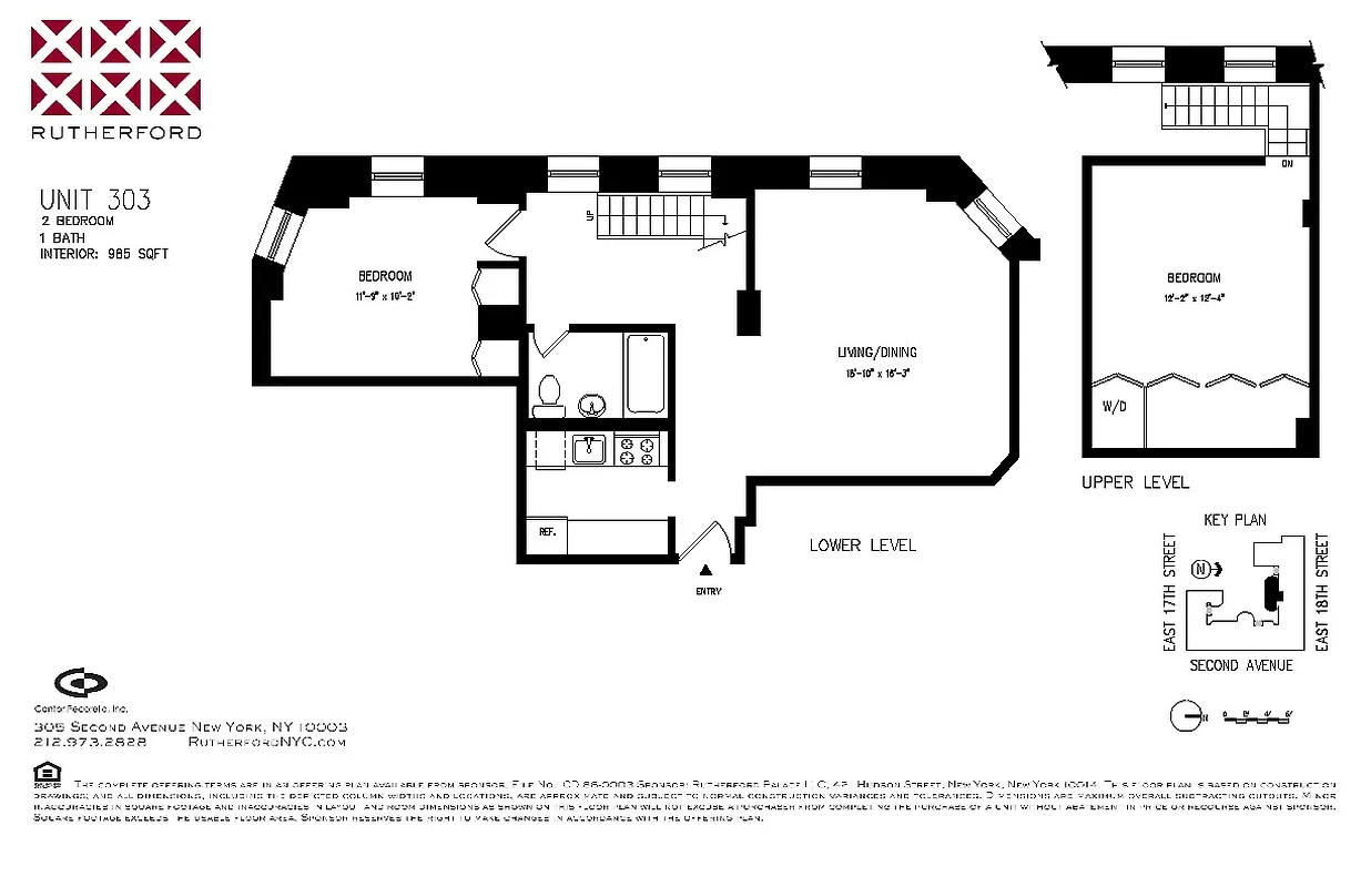
985 ft²
$1,374 per ft²
4 rooms
2 beds
1 bath
Condo
- Gramercy Park
Sponsor unit
Sponsor unitA unit being sold for the first time. It’s typically owned by the building. For condos, this is often the developer. For co-ops, this is often the building’s original owner before it went co-op.
recorded sale
Sold on 10/22/2014
Verified by closing records
Last listed for $1,395,000
Seller's agent
305 Second Ave Sales Center
Cantor and Pecorella
This home has been saved by 21 users.
Listing by Cantor and Pecorella, Corporate Broker
Common charges
$631/mo
Estimated payment
$8,383/mo
Legal disclaimerAll calculations are estimates provided by StreetEasy for informational purposes only. Actual amounts or financing terms may vary. Please contact your mortgage provider for specifics.Taxes
$939/mo
Tax abatement
No info
About
Seller’s agent
Buyer’s agent
description
PLEASE NOTE PICTURES ARE OF MODEL UNITS
Two bedroom, duplex condo with high ceilings in the living room & master bedroom. The recently renovated kitchen features a Viking stove, Sub-zero refrigerator, Bosch dishwasher, Poggenpohl cabinetry, and black granite countertops. Washer/dryer in unit. Rutherford Place is a full-service condominium with a 24 hour doorman, laundry on every floor, on-site valet service, rooftop sun deck, and bike room.
Policies
Pets allowed
Cats and dogs allowed
Home features
Central air
Dishwasher
Washer/dryer
Building amenities
Services and facilities
Bike room
Concierge
Doorman
Full-time
Elevator
Live-in super
Package room
Valet service
Wellness and recreation
Gym
Shared outdoor space
Roof deck
About the building
Rutherford Place
305 2nd Avenue, New York, NY 10003
127 units
9 stories
1903 built
For sale
3 available units for saleFor rent
0 available units for rentDocuments and permits
View documents and permitsProperty history
- Price Change: ↓ $100,000 (-6.7%) on 8/19/14
- Days on market: 64 daysThis is the number of days the listing has been on StreetEasy.
| Date | Price | Event |
|---|---|---|
10/22/2014 | $1,354,272 | Sold by Cantor and Pecorella |
9/16/2014 | $1,395,000 | In contract |
8/19/2014 | $1,395,000 | Price decreased by 7% |
7/14/2014 | $1,495,000 | Listed by Cantor and Pecorella |
Past listing photos
Sign in to take a closer look at how this home compares to similar homes.
Explore Gramercy Park
Transit
| Location | Distance |
|---|---|
Lat 3rd Av | 0.18 miles |
Lat 1st Av | 0.24 miles |
LNQRW456at 14th St–Union Square | 0.3 miles |
6at 23rd St | 0.36 miles |
6at Astor Place | 0.49 miles |
About Gramercy Park
Rental prices shown are base rent before any fees. Visit listings for cost and fees breakdown.
SalesMedian asking price
2 beds
$2.06M
RentalsMedian asking base rent
2 beds
$6,300
In the early 20th century, Gramercy Park was synonymous with luxury. Some of the most prominent New Yorkers lived in grand houses along the neighborhood's eponymous park. Today, Gramercy Park is a brief respite from the hustle and bustle of Downtown Manhattan that still retains an old-world vibe. It's not uncommon to see residents dressed in tweed and loafers tottering down Irving Place, a quiet commercial stretch that offers a mix of local shops, restaurants, and pubs. As you head further east, the avenues get busier and more generic.
Gramercy's side streets are lined with walk-ups and large apartment buildings and are more casual than the blocks surrounding the actual park, attracting residents looking for a quintessentially nice New York City neighborhood.









































































































































