$49,000
For Rent
Base rent only. For total monthly price and additional fees, see .
Rented 2/3/2020
4,510 ft²
$130 per ft²
12 rooms
5 beds
5.5 baths
Condo
- West Chelsea
Under NYC law, you can't be charged a broker fee if you didn't hire a broker.
Listed By
This home has been saved by 100 users.
Listing by Compass, Corporate Broker, 110 5th Avenue, New York, NY 10011
Unavailable
Rented on 2/3/2020
Days on market
171 days
Last price change
No changes
About
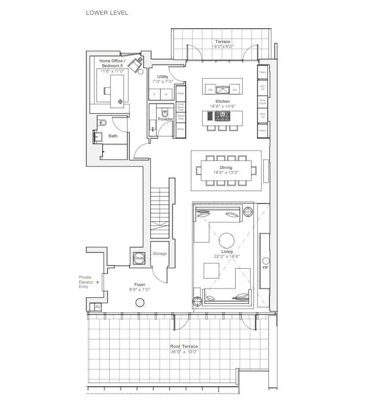
Meticulously designed, this 4,510 SF triplex five-bedroom, five-and-a-half-bathroom penthouse residence is designed with the distinction of a privately commissioned home, offering generous proportions and abundant light throughout. Upon arrival through an Augsburg oak paneled private elevator landing, you are welcomed into a grand foyer and living room with expansive floor-to-ceiling windows that...
Policies
Pets allowed
Home features
Central air
Dishwasher
Fireplace
Private outdoor space
Balcony, Patio, Terrace
Washer/dryer
Building amenities
Services and facilities
Bike room
Concierge
Doorman
Full-time
Elevator
Laundry in building
Package room
Parking
Valet service
Wellness and recreation
Gym
Swimming pool
Shared outdoor space
Roof deck
About the building
Soori High Line
522 West 29th Street, New York, NY 10001
31 units
11 stories
2017 built
Property history
Prices shown are base rent only. For total monthly price and additional fees, see .
| Date | Base rent | Event |
|---|---|---|
2/3/2020 | $49,000 | Rented by Compass |
8/16/2019 | $49,000 | Listed by Compass |
Past listing photos
Sign in to take a closer look at how this home compares to similar homes.
Explore West Chelsea
Transit
| Location | Distance |
|---|---|
7at 34 St Hudson Yards | 0.23 miles |
CEat 23rd St | 0.44 miles |
123ACEat 34th St–Penn Station | 0.45 miles |
LIRRat Penn Station | 0.49 miles |
Ferryat W 39th Street Ferry Landing | 0.57 miles |
Similar homes
Prices shown are base rent only and don't include any fees. Visit each listing to see a complete cost breakdown.
Similar Homes looks at ad spend and other factors like location, price, and number of beds and baths.












































































































































































































































































