$1,700,000
For Sale
No longer available 9/27/2013
2,067 ft²
$822 per ft²
6 rooms
3 beds
2.5 baths
Condo
- South Harlem
Seller's agents
Margery Gladstone
Douglas Elliman
This home has been saved by 8 users.
Listing by Douglas Elliman, Limited Liability Broker, 2150 Broadway, New York, NY 10023 | Brokerage Listing ID: 1600786
Common charges
$477/mo
Estimated payment
$9,319/mo
Legal disclaimerAll calculations are estimates provided by StreetEasy for informational purposes only. Actual amounts or financing terms may vary. Please contact your mortgage provider for specifics.Taxes
$246/mo
Tax abatement
J-51 expires in 2027
About
Seller’s agent
description
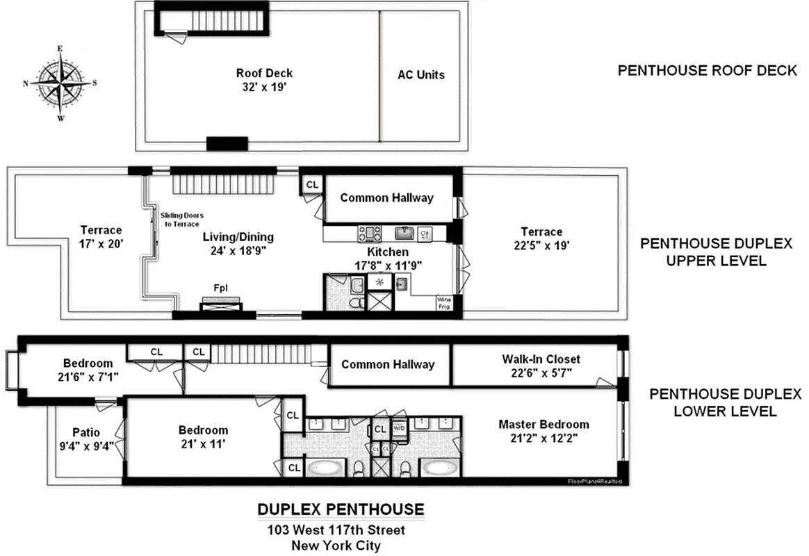
Great investment opportunity with Tenant in place until October 2014 paying $5,750 year one and $5,922.50 in year two. Stunning loft space with soaring ceiling and 1460 sq ft of OUTDOOR SPACE. There is a private roof deck plus 3 additional terraces. This 3 bedroom, 2.5 bath home was beautifully designed and renovated in 2007. From the large open kitchen to the spa like bathrooms, all high end materials were used.
Policies
Sorry, policy info isn’t available right now. Check back later.
Home features
Fireplace
Private outdoor space
Terrace
Washer/dryer
Building amenities
No info on building amenities
About the building
The Apollo Condominium
103 West 117th Street, New York, NY 10026
5 units
5 stories
1920 built
For sale
0 available units for saleFor rent
0 available units for rentDocuments and permits
View documents and permitsProperty history
- Price Change: No changes
- Days on market: 78 daysThis is the number of days the listing has been on StreetEasy.
| Date | Price | Event |
|---|---|---|
9/27/2013 | $1,700,000 | No longer available |
8/15/2013 | $1,700,000 | In contract |
5/29/2013 | $1,700,000 | Listed by Douglas Elliman |
8/15/2012 | $1,600,000 | |
4/24/2012 | $1,600,000 |
Sign in to take a closer look at how this home compares to similar homes.
Explore South Harlem
Transit
| Location | Distance |
|---|---|
23at 116th St | under 500 feet |
BCat 116th St | 0.3 miles |
23at 110th St–Central Park North | 0.31 miles |
23at 125th St | 0.37 miles |
BCat Cathedral Parkway–110th St | 0.49 miles |
















































































































































