$23,000
for rent
Base rent only. For total monthly price and additional fees, see .
Rented 5/29/2024
3,069 ft²
$89 per ft²
8 rooms
4 beds
3.5 baths
Condo
- Upper West Side
Under NYC law, you can't be charged a broker fee if you didn't hire a broker.
Listed by
This home has been saved by 20 users.
Listing by Corcoran, Limited Liability Broker, 221 Columbus Avenue, New York, NY 10023
Unavailable
Rented on 5/29/2024
Days on market
20 days
Last price change
No changes
About
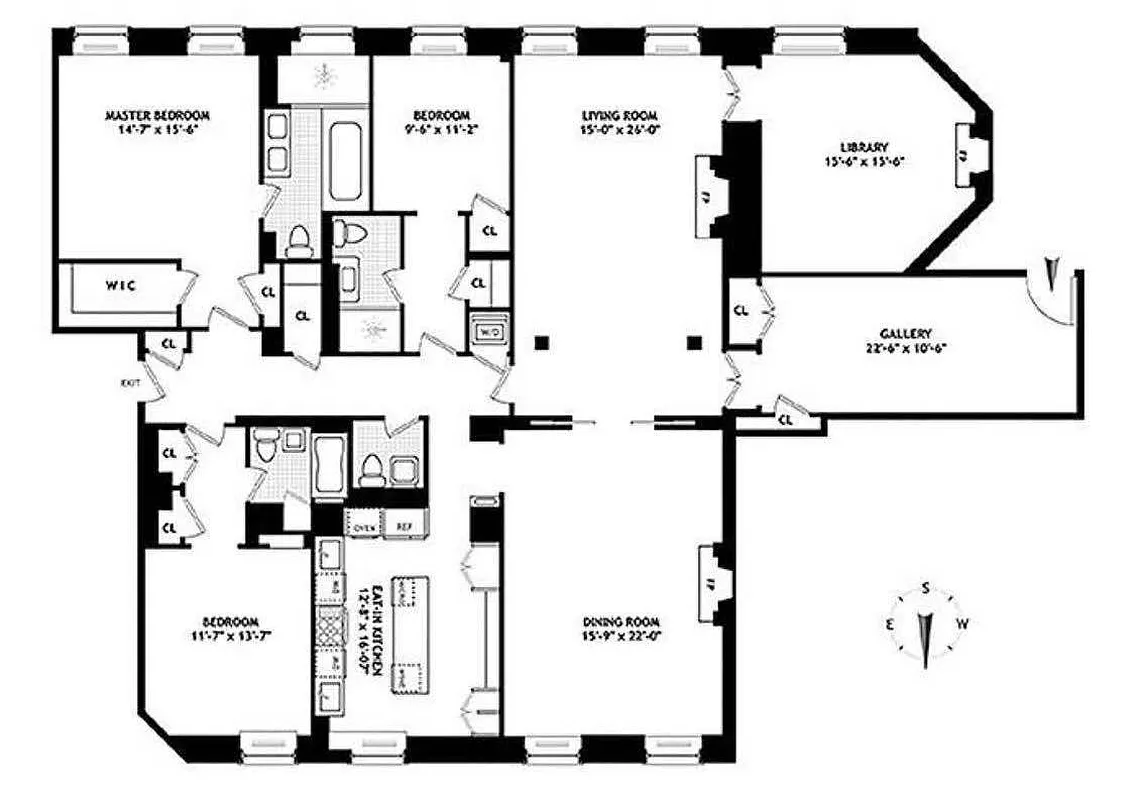
Over 3000 square foot residence 7J features grand entry hall with marble mosaic flooring, three ornate fireplaces and Southern and Northern exposures. This extremely bright 3/4 bedroom, 3.5 bathroom apartment has a very large living room with a formal dining room and a library that could be used as a home office or a guest bedroom.
Policies
Pets allowed
Cats and dogs allowed
Home features
Central air
Dishwasher
Fireplace
Decorative
Hardwood floors
View
City, Garden
Washer/dryer
Building amenities
Services and facilities
Bike room
Doorman
Full-time
Elevator
Laundry in building
Live-in super
Parking
Storage space
Wellness and recreation
Children's playroom
Gym
Shared outdoor space
No info on shared outdoor space
About the building
The Apthorp
390 West End Avenue, New York, NY 10024
154 units
12 stories
1908 built
Property history
Prices shown are base rent only. For total monthly price and additional fees, see .
| Date | Base rent | Event |
|---|---|---|
5/29/2024 | $23,000 | Rented by Corcoran |
5/2/2024 | $23,000 | In contract |
4/12/2024 | $23,000 | Listed by Corcoran |
5/27/2021 | $20,000 | |
3/8/2021 | $20,000 |
Past listing photos
Sign in to take a closer look at how this home compares to similar homes.
Explore Upper West Side
Transit
| Location | Distance |
|---|---|
1at 79th St | under 500 feet |
123at 72nd St | 0.32 miles |
1at 86th St | 0.38 miles |
BCat 81st St–Museum of Natural History | 0.46 miles |
BCat 72nd St | 0.56 miles |
About Upper West Side
Rental prices shown are base rent before any fees. Visit listings for cost and fees breakdown.
SalesMedian asking price
4 beds
$5.23M
RentalsMedian asking base rent
4 beds
$15,250
Sandwiched between two beautiful parks, the Upper West Side is one of the greenest spots in Manhattan. For that reason, it is a perennial favorite. The Upper West Side is relaxed, but never dull. There are plenty of low-key bars and restaurants to frequent along Amsterdam Avenue, and Broadway is an always-bustling commercial center. The wide, tree-lined streets still boast many mom-and-pop stores. Less posh than the Upper East Side, it is more easily accessible by public transportation, and real estate prices are just as, if not more, expensive.
Learn more about Upper West SideSimilar homes
Prices shown are base rent only and don't include any fees. Visit each listing to see a complete cost breakdown.
Similar Homes looks at ad spend and other factors like location, price, and number of beds and baths.






































































































































































