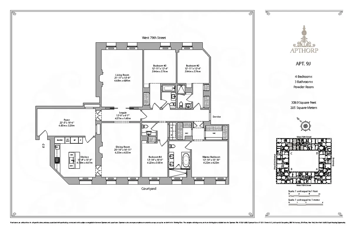
3,069 ft²
$2,020 per ft²
7 rooms
4 beds
3.5 baths
Condo
- Upper West Side
Sponsor unit
Sponsor unitA unit being sold for the first time. It’s typically owned by the building. For condos, this is often the developer. For co-ops, this is often the building’s original owner before it went co-op.
reported sale
Sold on 1/3/2018
Not yet verified by closing records
Seller's agents
This home has been saved by 31 users.
Listing by Brown Harris Stevens, Real Estate Principal Office, 1934 Broadway, New York, NY 10023
Common charges
$3,996/mo
Estimated payment
$39,657/mo
Legal disclaimerAll calculations are estimates provided by StreetEasy for informational purposes only. Actual amounts or financing terms may vary. Please contact your mortgage provider for specifics.Taxes
$3,243/mo
Tax abatement
No info
About
Seller’s agent
description
This is an incredible opportunity to create your dream home at The Apthorp, and bring back the glory of the fine bones of this apartment.
Spread out over approximately 3,069 sqft, this fabulous high floor "J" line home can accommodate four bedrooms and three and a half bathrooms or 3 bedrooms plus a large library, with great light and lovely Northern city views over West 79th Street.
Policies
Pets allowed
Cats and dogs allowed
Home features
No info on home features
Building amenities
Services and facilities
Bike room
Doorman
Full-time
Elevator
Laundry in building
Live-in super
Parking
Storage space
Wellness and recreation
Children's playroom
Gym
Shared outdoor space
No info on shared outdoor space
About the building
The Apthorp
390 West End Avenue, New York, NY 10024
154 units
12 stories
1908 built
For sale
6 available units for saleFor rent
1 available units for rentDocuments and permits
View documents and permitsProperty history
- Price Change: No changes
- Days on market: 85 daysThis is the number of days the listing has been on StreetEasy.
| Date | Price | Event |
|---|---|---|
1/3/2018 | $6,200,000 | Sold by Brown Harris Stevens |
12/15/2017 | $6,200,000 | In contract |
9/21/2017 | $6,200,000 | Listed by Brown Harris Stevens |
Past listing photos
Sign in to take a closer look at how this home compares to similar homes.
Explore Upper West Side
Transit
| Location | Distance |
|---|---|
1at 79th St | under 500 feet |
123at 72nd St | 0.32 miles |
1at 86th St | 0.38 miles |
BCat 81st St–Museum of Natural History | 0.46 miles |
BCat 72nd St | 0.56 miles |
About Upper West Side
Rental prices shown are base rent before any fees. Visit listings for cost and fees breakdown.
SalesMedian asking price
4 beds
$5.6M
RentalsMedian asking base rent
4 beds
$17,500
Sandwiched between two beautiful parks, the Upper West Side is one of the greenest spots in Manhattan. For that reason, it is a perennial favorite. The Upper West Side is relaxed, but never dull. There are plenty of low-key bars and restaurants to frequent along Amsterdam Avenue, and Broadway is an always-bustling commercial center. The wide, tree-lined streets still boast many mom-and-pop stores. Less posh than the Upper East Side, it is more easily accessible by public transportation, and real estate prices are just as, if not more, expensive.
Learn more about Upper West Side


















































































































































































