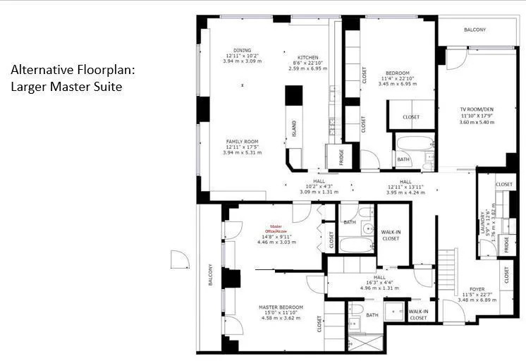
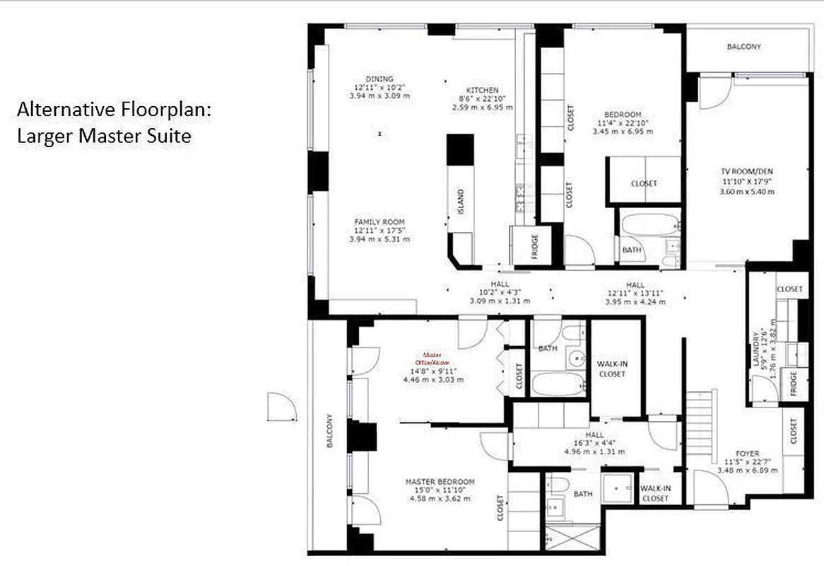
2,610 ft²
$1,570 per ft²
8 rooms
4 beds
4 baths
Condo
- Carnegie Hill
Resale
reported sale
Sold on 5/28/2022
Not yet verified by closing records
Listed by
Owner
This home has been saved by 101 users.
Listing by Owner
Common charges
$2,781/mo
Estimated payment
Taxes
$2,913/mo
Tax abatement
No info
About
description
Buyer's Agent Fee: 2.5%
3D Tour: https://my.matterport.com/show/?m=bBRSRvN7jeh
Sun flooded and spacious 4-bedroom, 4 bath duplex CONDO, with 2 OUTDOOR SPACES at the Gotham. Now priced below $1,700/SF, this property offers great value.
This beautiful apartment offers great light, a flexible layout, 2 large and usable balconies and fantastic closet space.
Policies
Pets allowed
Cats and dogs allowed
Home features
Dishwasher
Loft
Private outdoor space
Balcony
Washer/dryer
Building amenities
Services and facilities
Concierge
Doorman
Full-time
Elevator
Laundry in building
Live-in super
Storage space
Cold storage
Wellness and recreation
Children's playroom
Gym
Swimming pool
Shared outdoor space
Deck
About the building
The Gotham
170 East 87th Street, New York, NY 10128
234 units
28 stories
1991 built
For sale
7 available units for saleFor rent
0 available units for rentDocuments and permits
View documents and permitsProperty history
- Price Change: ↓ $150,000 (-3.5%) on 2/3/22
- Days on market: 352 daysThis is the number of days the listing has been on StreetEasy.
| Date | Price | Event |
|---|---|---|
10/26/2021 | $4,395,000 | |
7/22/2021 | $4,395,000 | Price decreased by 1% |
4/27/2021 | $4,450,000 | |
4/23/2021 | $4,799,000 | |
4/1/2021 | $4,799,000 | Price decreased by 2% |
Sign in to take a closer look at how this home compares to similar homes.
Explore Carnegie Hill
Transit
| Location | Distance |
|---|---|
456at 86th St | under 500 feet |
Qat 86th St | 0.18 miles |
Qat 96th St | 0.39 miles |
6at 96th St | 0.46 miles |
6at 77th St | 0.5 miles |























































































































































































































