- ft²
4 rooms
1 bed
1 bath
Co-op
- Lenox Hill
Resale
recorded sale
Sold on 1/3/2025
Verified by closing records
Last listed for $999,999
Seller's agent
This home has been saved by 179 users.
Listing by Corcoran, Limited Liability Broker, 221 Columbus Avenue, New York, NY 10023
Maintenance fees
$2,220/mo
Estimated payment
$7,206/mo
Taxes
Included in maintenance fees
Tax abatement
No info
About
Seller’s agent
Buyer’s agent
description
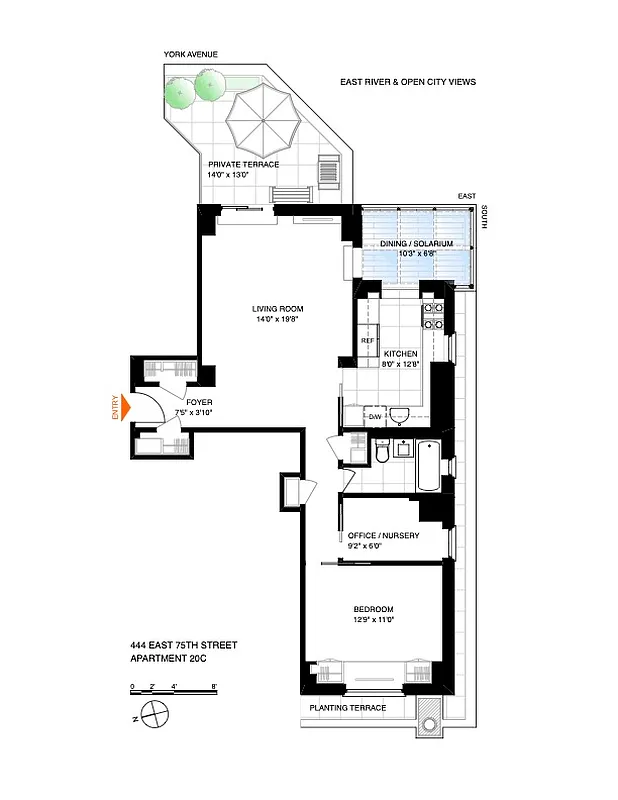
Exceptional value high floor home in pristine condition with extraordinary light, open views, and a large private terrace. This oversized one bedroom has been thoughtfully renovated to offer a flexible layout with extra space for easy everyday living and elegant entertaining. Features include a corner solarium which serves as a dining room or den, a separate office/nursery, and a renovated windowed kitchen with honed stone counter tops, updated cabinetry, and stainless steel appliances.
Policies
Co-purchase allowed
Guarantors accepted
Parents buying allowed
Pets allowed
Cats and dogs allowed
Pied-a-terre allowed
Home features
Dishwasher
Private outdoor space
Terrace
View
City, Skyline, Water
Building amenities
Services and facilities
Bike room
Doorman
Full-time
Elevator
Laundry in building
Live-in super
Wellness and recreation
No info on wellness and recreation
Shared outdoor space
No info on shared outdoor space
About the building
The Larrimore
444 East 75th Street, New York, NY 10021
140 units
19 stories
1963 built
For sale
0 available units for saleFor rent
0 available units for rentDocuments and permits
View documents and permitsProperty history
- Price Change: ↓ $99,001 (-9.0%) on 7/11/24
- Days on market: 243 days
| Date | Price | Event |
|---|---|---|
1/3/2025 | $929,000 | Sold by Corcoran |
12/16/2024 | $999,999 | In contract |
7/11/2024 | $999,999 | Price decreased by 9% |
4/17/2024 | $1,099,000 | Listed by Corcoran |
7/16/2019 | $999,950 |
Past listing photos
Sign in to take a closer look at how this home compares to similar homes.
Explore Lenox Hill
Transit
| Location | Distance |
|---|---|
Qat 72nd St | 0.29 miles |
6at 77th St | 0.49 miles |
Qat 86th St | 0.52 miles |
6at 68th St–Hunter College | 0.58 miles |
456at 86th St | 0.74 miles |








































































































