View this home virtually
$5,050
For Rent
Base rent only. For total monthly price and additional fees, see .
Rented 10/16/2022
750 ft²
$80 per ft²
3 rooms
1 bed
1 bath
Co-op
- Flatiron
Under NYC law, you can't be charged a broker fee if you didn't hire a broker.
Listed By
Owner
This home has been saved by 39 users.
Listing by Owner
Unavailable
Rented on 10/16/2022
Days on market
10 days
Last price change
↓ $450 (-8.2%) on 10/14/22
About
Amazing value for a 750 sqft renovated 1 BR in a luxury building in this prime area.
Available December 1. No broker fee. Listing is by owner.
✰ Unit ✰
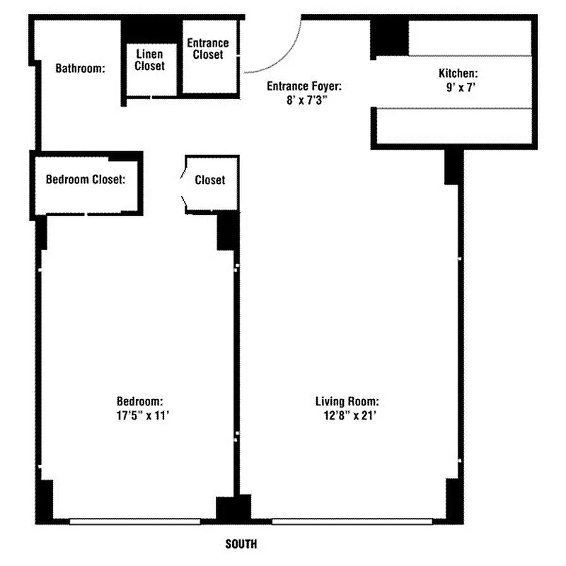
٭ Approximately 750 square feet with optimal layout and not a single inch of space wasted (see floor plan)
٭ South facing on the 6th floor, great natural light throughout the day and beautiful views
٭ Brand new kitchen renovation: quartz countertops,...
Policies
Guarantors accepted
Pied-a-terre allowed
Home features
Dishwasher
Hardwood floors
View
City
Building amenities
Services and facilities
Bike room
Concierge
Doorman
Full-time
Elevator
Laundry in building
Live-in super
Package room
Parking
Garage
Storage space
Cold storage
Wellness and recreation
Gym
Shared outdoor space
No info on shared outdoor space
About the building
The Victoria
7 East 14th Street, New York, NY 10003
495 units
21 stories
1965 built
Property history
Prices shown are base rent only. For total monthly price and additional fees, see .
| Date | Base rent | Event |
|---|---|---|
10/16/2022 | $5,050 | Rented by Owner |
10/14/2022 | $5,050 | In contract |
10/14/2022 | $5,050 | Price decreased by 8% |
10/14/2022 | $5,500 | Price increased by 16% |
10/4/2022 | $4,750 | Listed by Owner |
Past listing photos
Sign in to take a closer look at how this home compares to similar homes.
Explore Flatiron
Transit
| Location | Distance |
|---|---|
LNQRW456at 14th St–Union Square | under 500 feet |
FLM123at 14th St | 0.23 miles |
FLM123at 6th Av | 0.23 miles |
PATHat 14th Street Station | 0.25 miles |
Lat 3rd Av | 0.34 miles |
About Flatiron
Rental prices shown are base rent before any fees. Visit listings for cost and fees breakdown.
SalesMedian asking price
1 bed
$1.34M
RentalsMedian asking base rent
1 bed
$6,000
Flatiron is a historic New York City neighborhood that has seen its fair share of change over the years. In the early 1900s, it was a major commercial and residential center. By the middle of the century, things stagnated as businesses and residents left in search of more space and lower rents. In recent years, stores, upscale restaurants, and new developments moved back in, and the neighborhood is seeing a significant resurgence. Fifth Avenue now bustles with some of the best shopping in the city, and restaurants run the gamut from Michelin-rated to Yelp-reviewed food trucks.
Flatiron is busiest at midday and cocktail hour and tends to quiet down a bit at night, although the lights never truly turn off. Proximity to Union Square and multiple subway lines make it an equally easy trip to Midtown or Downtown.
Similar homes
Prices shown are base rent only and don't include any fees. Visit each listing to see a complete cost breakdown.
Similar Homes looks at ad spend and other factors like location, price, and number of beds and baths.

















































































































