View this home virtually
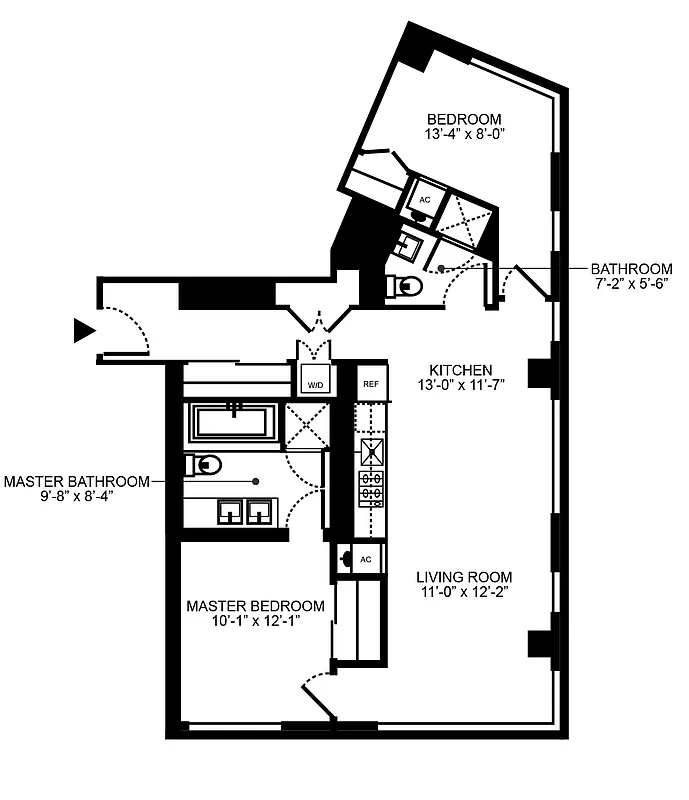
1,033 ft²
$1,161 per ft²
4 rooms
2 beds
2 baths
Condo
- Downtown Brooklyn
Resale
recorded sale
Sold on 2/3/2022
Verified by closing records
Last listed for $1,185,000
Seller's agent
This home has been saved by 70 users.
Listing by Brooklyn Properties, Corporate Broker, 85 Fort Greene Place, Brooklyn, NY 11217
Common charges
$1,169/mo
Estimated payment
$7,343/mo
Legal disclaimerAll calculations are estimates provided by StreetEasy for informational purposes only. Actual amounts or financing terms may vary. Please contact your mortgage provider for specifics.Taxes
$25/mo
Tax abatement
421a expires in 2035
About
Seller’s agent
description
A STONE'S THROW TO MANHATTAN FROM THIS BRIGHT, VIBRANT AND ABOVE IT ALL....QUIET 2 BEDROOM. Two bathrooms in this Gold LEED certified Toren Condominium, designed by SOM architects. In the center of all conveniences in Downtown Brooklyn. This 15th floor home features floor to ceiling windows with dazzling panoramic views, 3 different exposures, Brazilian wood floors, two bedrooms on opposite ends,...
Policies
Pets allowed
Cats and dogs allowed
Home features
Central air
Dishwasher
Hardwood floors
View
City, Skyline
Washer/dryer
Building amenities
Services and facilities
Concierge
Doorman
Full-time
Elevator
Live-in super
Package room
Parking
Garage
Wellness and recreation
Children's playroom
Gym
Media room
Swimming pool
Shared outdoor space
Deck
Roof deck
About the building
Toren
150 Myrtle Avenue, Brooklyn, NY 11201
240 units
37 stories
2009 built
For sale
3 available units for saleFor rent
2 available units for rentDocuments and permits
View documents and permitsProperty history
- Price Change: No changes
- Days on market: 43 daysThis is the number of days the listing has been on StreetEasy.
| Date | Price | Event |
|---|---|---|
2/3/2022 | $1,200,000 | Sold by Brooklyn Properties |
9/8/2021 | $1,185,000 | In contract |
7/27/2021 | $1,185,000 | Listed by Brooklyn Properties |
10/25/2013 | $0 | |
8/30/2013 | $760,000 |
Past listing photos
Sign in to take a closer look at how this home compares to similar homes.
Explore Downtown Brooklyn
Transit
| Location | Distance |
|---|---|
BQRat DeKalb Av | 0.11 miles |
ACFRat Jay St–MetroTech | 0.14 miles |
23at Hoyt St | 0.2 miles |
ACGat Hoyt & Schermerhorn | 0.33 miles |
2345at Nevins St | 0.35 miles |
About Downtown Brooklyn
Rental prices shown are base rent before any fees. Visit listings for cost and fees breakdown.
SalesMedian asking price
2 beds
$1.78M
RentalsMedian asking base rent
2 beds
$6,650
Bisected by Flatbush Avenue and bordered by the BQE, Downtown Brooklyn is a rapidly expanding residential neighborhood. Easy subway access and abundant inventory have drawn many to the area looking for luxury rentals and condos in the area's numerous new apartment towers.
Historically, Downtown Brooklyn has been the hub of the borough's municipal activities with many civil service offices and court houses centered around Cadman Plaza, the neighborhood's main hub. With tons of city employees, lawyers and Brooklynites of all types constantly bustling about, Downtown Brooklyn has a decidedly hectic vibe. This, coupled with the area's lack of green space, makes Downtown Brooklyn most appealing to those who can embrace one of Brooklyn's busiest and most trafficked neighborhoods.








































































































































































