$9,000
For Rent
Base rent only. For total monthly price and additional fees, see .
Rented 7/18/2013
- ft²
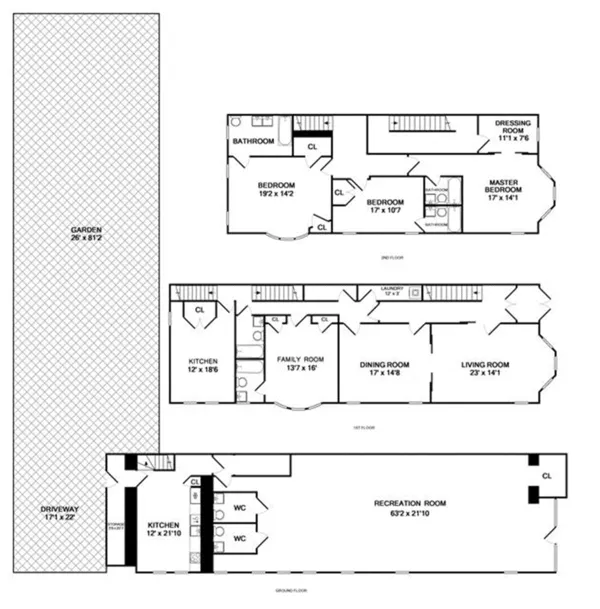
14 rooms
3 beds
5+ baths
Mixed-use building
- South Harlem
Under NYC law, you can't be charged a broker fee if you didn't hire a broker.
Listed By
This home has been saved by 1 user.
Listing by Douglas Elliman, Limited Liability Broker | Brokerage Listing ID: 1600245
Unavailable
Rented on 7/18/2013
Days on market
56 days
Last price change
No changes
About
Live like the Jazz Greats! Offered is a sprawling three-bedroom, five-bathroom home with soaring 14’ high parlor doors separating the living, dining and family rooms in this luxurious restored Harlem Renaissance-era brownstone triplex in the heart of South Harlem. Featuring 3 ensuite bedrooms, an eat-in chefs kitchen, a second cook’s kitchen, private parking, backyard, recreation room, laundry room, central air and heat.
Policies
Sorry, policy info isn’t available right now. Check back later.
Home features
No info on home features
Building amenities
Services and facilities
Doorman
Virtual
Wellness and recreation
No info on wellness and recreation
Shared outdoor space
No info on shared outdoor space
About the building
181 Lenox Avenue
181 Lenox Avenue, New York, NY 10026
2 units
4 stories
1910 built
Property history
Prices shown are base rent only. For total monthly price and additional fees, see .
| Date | Base rent | Event |
|---|---|---|
7/19/2013 | $9,000 | Rented by Douglas Elliman |
7/18/2013 | $9,000 | No longer available |
5/23/2013 | $9,000 | Listed by Douglas Elliman |
Past listing photos
Sign in to take a closer look at how this home compares to similar homes.
Explore South Harlem
Transit
| Location | Distance |
|---|---|
23at 116th St | 0.17 miles |
23at 125th St | 0.27 miles |
BCat 116th St | 0.34 miles |
23at 110th St–Central Park North | 0.42 miles |
ABCDat 125th St | 0.47 miles |
Similar homes
Prices shown are base rent only and don't include any fees. Visit each listing to see a complete cost breakdown.
Similar Homes looks at ad spend and other factors like location, price, and number of beds and baths.





































































































































