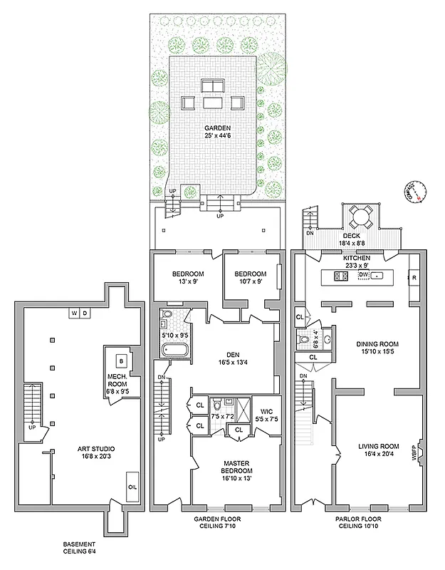
2,420 ft²
$1,327 per ft²
7 rooms
3 beds
2.5 baths
Condo
- Carroll Gardens
recorded sale
Sold on 6/25/2019
Verified by closing records
Last listed for $3,275,000
Seller's agents
This home has been saved by 51 users.
Listing by Compass, Corporate Broker, 375 Schermerhorn Street, Brooklyn, NY 11217
Common charges
$660/mo
Estimated payment
$17,797/mo
Legal disclaimerAll calculations are estimates provided by StreetEasy for informational purposes only. Actual amounts or financing terms may vary. Please contact your mortgage provider for specifics.Taxes
$577/mo
Tax abatement
No info
About
Seller’s agent
description
An exceedingly rare opportunity to own an enormous 3 bed/2.5 bath Duplex Condo in a grand, 25 foot wide townhouse in Cobble Hill! 232 DeGraw Street, Unit 1 has 2,420 square feet of interior living space, plus an additional huge lush, private garden in the back.
This exquisite home leaves nothing to be desired.
Policies
Sorry, policy info isn’t available right now. Check back later.
Home features
Dishwasher
Fireplace
Private outdoor space
Garden, Terrace
Washer/dryer
Building amenities
Services and facilities
Storage space
Wellness and recreation
No info on wellness and recreation
Shared outdoor space
Deck
About the building
232 De Graw Street
232 De Graw Street, Brooklyn, NY 11231
2 units
3 stories
1910 built
For sale
0 available units for saleFor rent
0 available units for rentDocuments and permits
View documents and permitsProperty history
- Price Change: No changes
- Days on market: 39 daysThis is the number of days the listing has been on StreetEasy.
| Date | Price | Event |
|---|---|---|
6/25/2019 | $3,212,500 | Sold by Compass |
4/20/2019 | $3,275,000 | In contract |
3/12/2019 | $3,275,000 | Listed by Compass |
10/1/2018 | $3,275,000 | |
7/20/2018 | $3,275,000 | Price decreased by 6% |
Past listing photos
Sign in to take a closer look at how this home compares to similar homes.
Explore Carroll Gardens
Transit
| Location | Distance |
|---|---|
FGat Carroll St | 0.29 miles |
FGat Bergen St | 0.36 miles |
FGRat Smith–9th St | 0.66 miles |
R2345at Borough Hall/Court St | 0.67 miles |
ACGat Hoyt & Schermerhorn | 0.72 miles |
About Carroll Gardens
Rental prices shown are base rent before any fees. Visit listings for cost and fees breakdown.
SalesMedian asking price
3 beds
$3.26M
RentalsMedian asking base rent
3 beds
$8,500
Carroll Gardens is at once the heart of old-school Brooklyn and a showcase for the borough's brownstone boom. The neighborhood has long been known for its red-sauce Italian joints and lively street life. But now, staples like Caputo's Bake Shop and Monteleone's Bakery and Café abut upscale stroller shops, yoga studios and fro-yo joints. Despite the newcomers, the neighborhood still feels like a small town, one of the few places where you might know your neighbors, your postman and your butcher by name.
Learn more about Carroll Gardens



















































































































