$2,799,999
For Sale
- ft²
11 rooms
5 beds
5 baths
Four-family home
- Central Harlem
Resale
This home has been saved by 42 users.
Listing by Homesmart Premier Living Realty, Limited Liability Broker, 234-21 41st. Avenue, Douglaston, NY 11363
Common charges
Not applicable
Estimated payment
$16,811/mo
Legal disclaimerAll calculations are estimates provided by StreetEasy for informational purposes only. Actual amounts or financing terms may vary. Please contact your mortgage provider for specifics.Taxes
$2,468/mo
Tax abatement
No info
About
Seller’s agent
description
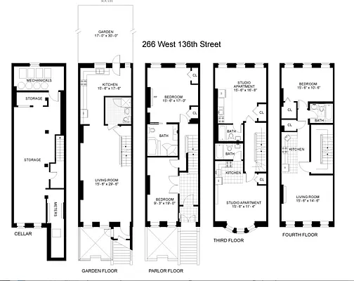
4 Family Brownstone, on tree-lined street in Central Harlem; This 1910 renaissance style brownstone has high ceilings, hardwood floors, exposed brick, stain glass arched windows and original wood details. Building will be delivered with current tenants and leases in place. Fully renovated with high end finishes. New roof just installed with 20 year warranty. The Garden apartment is a triplex with a built out backyard deck.
Policies
Sorry, policy info isn’t available right now. Check back later.
Home features
Central air
Dishwasher
Hardwood floors
View
City
Washer/dryer
Building amenities
Services and facilities
No info on services and facilities
Wellness and recreation
No info on wellness and recreation
Shared outdoor space
Courtyard
About the building
266 West 136th Street
266 West 136th Street, New York, NY 10030
4 units
3 stories
1910 built
For sale
1 available units for saleFor rent
0 available units for rentDocuments and permits
View documents and permitsProperty history
- Price Change: ↓ $200,000 (-6.7%) on 1/25/25
- Days on market: 420 daysThis is the number of days the listing has been on StreetEasy.
| Date | Price | Event |
|---|---|---|
1/25/2025 | $2,799,999 | Price decreased by 7% |
12/11/2024 | $2,999,999 | Price decreased by 6% |
10/10/2024 | $3,200,000 | Listed by Homesmart Premier Living Realty |
10/31/2023 | $0 |
Sign in to take a closer look at how this home compares to similar homes.
Explore Central Harlem
Transit
| Location | Distance |
|---|---|
| 0.11 miles |
| 0.3 miles |
| 0.45 miles |
| 0.49 miles |
| 0.54 miles |
About Central Harlem
Rental prices shown are base rent before any fees. Visit listings for cost and fees breakdown.
SalesMedian asking price
5 beds
$2.75M
RentalsMedian asking base rent
5 beds
$12,500
Harlem begins directly above Central Park, where you will find busy thoroughfares adjacent to quiet tree-lined blocks lined with brownstones and pre-war apartment buildings.
Learn more about Central Harlem




















































































































































































































































































































































































