$1,195,000
For Sale
Delisted 6/10/2022
- ft²
6 rooms
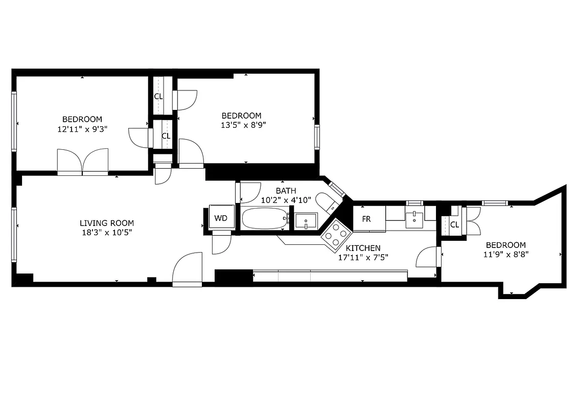
3 beds
1 bath
Co-op
- East Village
Resale
Seller's agents
This home has been saved by 43 users.
Listing by Compass, Corporate Broker, 110 5th Avenue, New York, NY 10011
Maintenance fees
$1,525/mo
Estimated payment
$8,323/mo
Legal disclaimerAll calculations are estimates provided by StreetEasy for informational purposes only. Actual amounts or financing terms may vary. Please contact your mortgage provider for specifics.Taxes
Included in maintenance fees
Tax abatement
No info
About
Seller’s agent
description
An Investor-friendly 3 bedroom co-op in the East Village for only $1.195?! You found it!
Welcome home to this extra large and extra sunny 3 bedroom, 1 bathroom prewar ground floor co-op, in the heart of the vibrant East Village. The apartment was recently renovated and features a lovely, south-facing living room, a smartly-designed kitchen with extra storage and top of the line appliances (Sub-Zero...
Policies
Gifts allowed
Guarantors accepted
Parents buying allowed
Pets allowed
Cats and dogs allowed
Sublets allowed
Home features
Dishwasher
Hardwood floors
Washer/dryer
Building amenities
Services and facilities
Bike room
Live-in super
Wellness and recreation
No info on wellness and recreation
Shared outdoor space
No info on shared outdoor space
About the building
315 East 12th Street
315 East 12th Street, New York, NY 10003
36 units
6 stories
1900 built
For sale
0 available units for saleFor rent
0 available units for rentDocuments and permits
View documents and permitsProperty history
- Price Change: No changes
- Days on market: 44 daysThis is the number of days the listing has been on StreetEasy.
| Date | Price | Event |
|---|---|---|
6/10/2022 | $1,195,000 | Delisted by Compass |
4/27/2022 | $1,195,000 | Listed by Compass |
1/4/2021 | $1,095,000 | |
11/16/2020 | $1,095,000 | |
1/26/2016 | $1,014,975 |
Past listing photos
Sign in to take a closer look at how this home compares to similar homes.
Explore East Village
Transit
| Location | Distance |
|---|---|
Lat 1st Av | 0.12 miles |
Lat 3rd Av | 0.17 miles |
6at Astor Place | 0.31 miles |
LNQRW456at 14th St–Union Square | 0.33 miles |
RWat 8th St–NYU | 0.38 miles |
About East Village
Rental prices shown are base rent before any fees. Visit listings for cost and fees breakdown.
SalesMedian asking price
3 beds
$3.45M
RentalsMedian asking base rent
3 beds
$7,495
Known and loved for being the birthplace of punk rock, the East Village is known for its vibrant restaurants and cocktail dens. During the day, however, the neighborhood slows down and has a tranquil feel. Meander down a leafy side street, and you'll happen upon plenty of prewar buildings and rusting fire escapes, which lend the East Village its old-fashioned charm.
Learn more about East Village




















































































































