1,612 ft²
$1,163 per ft²
5 rooms
3 beds
2.5 baths
Condo
- Clinton Hill
recorded sale
Sold on 10/16/2019
Verified by closing records
Last listed for $1,899,000
Seller's agents
This home has been saved by 44 users.
Listing by Corcoran, Limited Liability Broker, 125 Seventh Avenue, Brooklyn, NY 11215 | Brokerage Listing ID: 5688680
Common charges
$243/mo
Estimated payment
$10,395/mo
Legal disclaimerAll calculations are estimates provided by StreetEasy for informational purposes only. Actual amounts or financing terms may vary. Please contact your mortgage provider for specifics.Taxes
$387/mo
Tax abatement
No info
About
Seller’s agent
Buyer’s agent
description
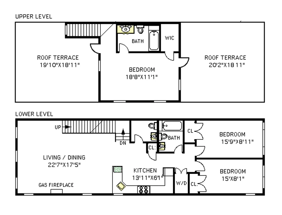
38 Lexington Avenue, #3A is an amazing 1,612 square foot three bedroom, two and a half bathroom penthouse duplex with two incredible private rooftop terraces and its own private entrance.
The first level of this magnificent home features a striking designer kitchen that has top of the line appliances including a Smeg five burner stove and Liebherr extra tall refrigerator.
Policies
Sorry, policy info isn’t available right now. Check back later.
Home features
Central air
Dishwasher
Fireplace
Building amenities
Services and facilities
Laundry in building
Storage space
Wellness and recreation
No info on wellness and recreation
Shared outdoor space
Roof deck
About the building
38 Lexington Avenue
38 Lexington Avenue, Brooklyn, NY 11238
12 units
4 stories
2017 built
For sale
0 available units for saleFor rent
0 available units for rentDocuments and permits
View documents and permitsProperty history
- Price Change: No changes
- Days on market: 69 daysThis is the number of days the listing has been on StreetEasy.
| Date | Price | Event |
|---|---|---|
10/16/2019 | $1,875,000 | Sold by Corcoran |
10/22/2019 | $1,899,000 | No longer available |
5/21/2019 | $1,899,000 | In contract |
3/13/2019 | $1,899,000 | Listed by Corcoran |
Past listing photos
Sign in to take a closer look at how this home compares to similar homes.
Explore Clinton Hill
Transit
| Location | Distance |
|---|---|
| 0.17 miles |
| 0.29 miles |
| 0.3 miles |
| 0.35 miles |
| 0.44 miles |













































































































































