1,950 ft²
$637 per ft²
6 rooms
4 beds
2 baths
Two-family home
- Sunset Park
recorded sale
Sold on 10/13/2015
Verified by closing records
Last listed for $1,048,000
Seller's agents
This home has been saved by 76 users.
Listing by Douglas Elliman, Limited Liability Broker, 514 2nd Street, Brooklyn, NY 11215 | Brokerage Listing ID: 2130378
Common charges
Not applicable
Estimated payment
$5,574/mo
Legal disclaimerAll calculations are estimates provided by StreetEasy for informational purposes only. Actual amounts or financing terms may vary. Please contact your mortgage provider for specifics.Taxes
$275/mo
Tax abatement
No info
About
Seller’s agent
Buyer’s agent
description
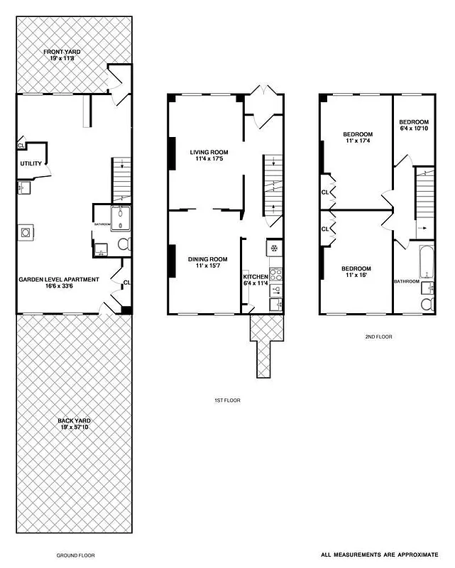
Welcome home to Sunset Park! This beautiful brick two-family home, currently used as a one-family, provides the space and flexibility to meet you needs. The upper duplex consists of 3 bedrooms, full bath with claw-foot tub, living room, formal dining room, kitchen and access to the rear yard. The lower level is currently configured as laundry area and storage but features a full bath and can be an income producing apartment or expand your living space into the lower level.
Policies
Sorry, policy info isn’t available right now. Check back later.
Home features
Private outdoor space
Garden, Patio
Building amenities
No info on building amenities
About the building
432 37th Street
432 37th Street, Brooklyn, NY 11232
2 units
2 stories
1901 built
For sale
0 available units for saleFor rent
0 available units for rentDocuments and permits
View documents and permitsProperty history
- Price Change: No changes
- Days on market: 47 daysThis is the number of days the listing has been on StreetEasy.
| Date | Price | Event |
|---|---|---|
6/17/2025 | $1,510,000 | |
5/2/2025 | $1,300,000 | |
3/25/2025 | $1,300,000 | |
10/13/2015 | $1,243,200 | Sold by Douglas Elliman |
10/13/2015 | $1,048,000 | No longer available |
Past listing photos
Sign in to take a closer look at how this home compares to similar homes.
Explore Sunset Park
Transit
| Location | Distance |
|---|---|
NRat 36th St | under 500 feet |
Rat 45th St | 0.37 miles |
Rat 25th St | 0.6 miles |
Dat 9th Av | 0.69 miles |
Rat 53rd St | 0.78 miles |
About Sunset Park
Rental prices shown are base rent before any fees. Visit listings for cost and fees breakdown.
SalesMedian asking price
4 beds
$2.6M
RentalsMedian asking base rent
4 beds
$3,495
Tucked between Park Slope and Bay Ridge, Sunset Park is a bit of a hike from Manhattan and Downtown Brooklyn. Relative obscurity has kept rents low for decades, although that appears to be slowly changing as brownstone families are priced out of Park Slope and Carroll Gardens. A new hipster wave is beginning here: Industry City, a cluster of 16 warehouses on cobblestone streets, now hosts Smorgasburg, The Brooklyn Flea, and Mister Sunday, a day dance party in the summer. The galleries, tech conferences, rooftop movie screenings, and countless artisan shops in that complex are slowly putting Sunset Park on the map for young people.
Learn more about Sunset Park










































































































































