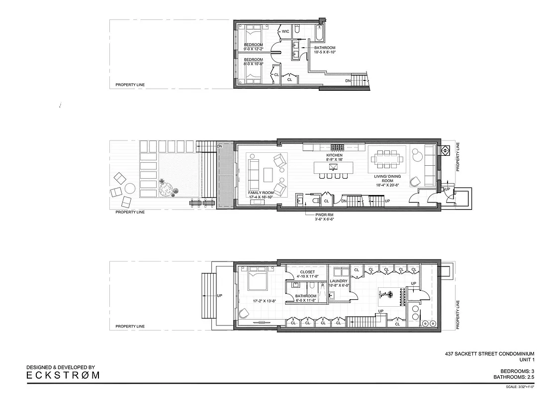
2,954 ft²
$1,010 per ft²
7 rooms
3 beds
2.5 baths
Two-family home
- Carroll Gardens
Sponsor unit
Sponsor unitA unit being sold for the first time. It’s typically owned by the building. For condos, this is often the developer. For co-ops, this is often the building’s original owner before it went co-op.
reported sale
Sold on 11/7/2024
Not yet verified by closing records
Seller's agents
This home has been saved by 103 users.
Listing by Park Property Advisors, Corporate Broker, 77 Sands Street, Brooklyn, NY 11201
Common charges
Not applicable
Estimated payment
$17,119/mo
Legal disclaimerAll calculations are estimates provided by StreetEasy for informational purposes only. Actual amounts or financing terms may vary. Please contact your mortgage provider for specifics.Taxes
$717/mo
Tax abatement
No info
About
Seller’s agent
description
Contract out with backups - no longer showing.
A new townhouse conversion by ECKSTRØM.
Private garden
Almost 3,000sf
Two car parking available for purchase.
Located in a quiet and bucolic block in beloved Carroll Gardens, the two townhouse size homes at 437 Sackett Street provide the privacy and space of living in your own brownstone while enjoying the convenience of a move in ready, never lived in and fully gut renovated boutique two unit condominium.
Policies
Sorry, policy info isn’t available right now. Check back later.
Home features
Central air
Dishwasher
Fireplace
Gas
Hardwood floors
Private outdoor space
Balcony, Garden
View
City, Garden
Washer/dryer
Building amenities
Services and facilities
Laundry in building
Parking
Garage
Wellness and recreation
No info on wellness and recreation
Shared outdoor space
Courtyard
About the building
437 Sackett Street
437 Sackett Street, Brooklyn, NY 11231
2 units
2 stories
1901 built
For sale
0 available units for saleFor rent
0 available units for rentDocuments and permits
View documents and permitsProperty history
- Price Change: No changes
- Days on market: 20 daysThis is the number of days the listing has been on StreetEasy.
| Date | Price | Event |
|---|---|---|
11/7/2024 | $2,985,000 | Sold by Park Property Advisors |
9/3/2024 | $2,985,000 | In contract |
8/14/2024 | $2,985,000 | Listed by Park Property Advisors |
Past listing photos
Sign in to take a closer look at how this home compares to similar homes.
Explore Carroll Gardens
Transit
| Location | Distance |
|---|---|
FGat Carroll St | 0.2 miles |
FGat Bergen St | 0.29 miles |
Rat Union St | 0.47 miles |
ACGat Hoyt & Schermerhorn | 0.59 miles |
FGRat Smith–9th St | 0.59 miles |
About Carroll Gardens
Rental prices shown are base rent before any fees. Visit listings for cost and fees breakdown.
SalesMedian asking price
3 beds
$3.26M
RentalsMedian asking base rent
3 beds
$8,500
Carroll Gardens is at once the heart of old-school Brooklyn and a showcase for the borough's brownstone boom. The neighborhood has long been known for its red-sauce Italian joints and lively street life. But now, staples like Caputo's Bake Shop and Monteleone's Bakery and Café abut upscale stroller shops, yoga studios and fro-yo joints. Despite the newcomers, the neighborhood still feels like a small town, one of the few places where you might know your neighbors, your postman and your butcher by name.
Learn more about Carroll Gardens



















































































