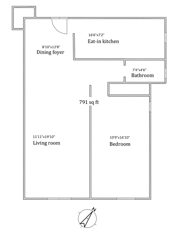
791 ft²
$265 per ft²
5 rooms
1 bed
1 bath
Co-op
- Forest Hills
Resale
recorded sale
Sold on 9/18/2014
Verified by closing records
Last listed for $199,000
Seller's agent
This home has been saved by 5 users.
Listing by Next Step Realty New York LLC, Limited Liability Broker, 555 Hudson Street, New York, NY 10014
Maintenance fees
$615/mo
Estimated payment
$1,610/mo
Taxes
Included in maintenance fees
Tax abatement
No info
About
Seller’s agent
description
Come live at The Dorian in Forest Hills! Beautiful and large move-in-ready 1-BR apartment in a charming, Forest Hills co-op off Queens Blvd. This home features a sprawling layout with 791 square feet of space - one of the lowest price-per-square-foot apartments in all of Forest Hills. Beautiful hardwood floors throughout and windows in every room.
Policies
Sorry, policy info isn’t available right now. Check back later.
Home features
No info on home features
Building amenities
Services and facilities
Laundry in building
Live-in super
Wellness and recreation
No info on wellness and recreation
Shared outdoor space
No info on shared outdoor space
About the building
72-11 110th Street
72-11 110th Street, Forest Hills, NY 11375
53 units
6 stories
1948 built
For sale
3 available units for saleFor rent
0 available units for rentDocuments and permits
View documents and permitsProperty history
- Price Change: ↓ $1,000 (-0.5%) on 6/12/13
- Days on market: 0 days
| Date | Price | Event |
|---|---|---|
9/18/2014 | $210,000 | Sold by Next Step Realty New York LLC |
7/15/2013 | $199,000 | Delisted by Next Step Realty New York LLC |
6/25/2013 | $199,000 | In contract |
6/12/2013 | $199,000 | Price decreased by 1% |
6/4/2013 | $200,000 | Price decreased by 2% |
Past listing photos
Sign in to take a closer look at how this home compares to similar homes.
Explore Forest Hills
Transit
| Location | Distance |
|---|---|
EFMRat Forest Hills–71st Av | 0.17 miles |
EFat 75th Av | 0.17 miles |
LIRRat Forest Hills | 0.24 miles |
EFat Kew Gardens–Union Turnpike | 0.6 miles |
MRat 67th Av | 0.71 miles |
About Forest Hills
Rental prices shown are base rent before any fees. Visit listings for cost and fees breakdown.
SalesMedian asking price
1 bed
$335K
RentalsMedian asking base rent
1 bed
$2,795
Bisected by Queens Boulevard, Forest Hills offers two types of city living: Urban apartment complexes on one side and the other, the storied Forest Hills Gardens. Whichever side of the boulevard you live on, this suburban neighborhood is teeming with lots of public outdoor space. Another good to know, many residents own a car.
Learn more about Forest Hills
















































































































