$3,300
For Rent
Base rent only. For total monthly price and additional fees, see .
Rented 7/15/2025
800 ft²
$49 per ft²
5 rooms
1 bed
1 bath
Condo
- Flushing
Under NYC law, you can't be charged a broker fee if you didn't hire a broker.
Listed By
This home has been saved by 2 users.
Listing by Livin USA LLC, Limited Liability Broker, 4026 College Point Boulevard, Flushing, NY 11354-5131
Unavailable
Rented on 7/15/2025
Days on market
2 days
Last price change
No changes
About
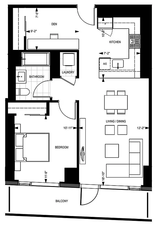
Gorgeous and spacious 1br in the newest Grand building in the famous Skyview Parc complex for rent.
**Sought after Large south facing unit
U shape kitchen and bonus office alcove**
Features:
Located at the heart of Flushing:
- Located 2 blocks away from 7 train, LIRR, and buses
- Skyview Center Mall right downstairs provide your convenient everyday shopping needs
- A short stroll to Citi Field, home of...
Policies
Sorry, policy info isn’t available right now. Check back later.
Home features
Central air
Dishwasher
Hardwood floors
Private outdoor space
Balcony, Garden, Terrace
View
Garden, Skyline
Washer/dryer
Building amenities
Services and facilities
Bike room
Concierge
Doorman
Full-time
Elevator
Laundry in building
Live-in super
Package room
Parking
Garage
Storage space
Locker/cage
Wheelchair access
Wellness and recreation
Children's playroom
Gym
Media room
Swimming pool
Shared outdoor space
Courtyard
Roof deck
About the building
Grand Three
131-01 40th Road, Queens, NY 11354
Complex:
The Grand at Sky View Parc248 units
14 stories
2016 built
Property history
Prices shown are base rent only. For total monthly price and additional fees, see .
| Date | Base rent | Event |
|---|---|---|
7/15/2025 | $3,300 | Rented by Livin USA LLC |
5/31/2025 | $3,300 | In contract |
5/29/2025 | $3,300 | Listed by Livin USA LLC |
8/21/2024 | $3,200 | |
6/20/2024 | $3,200 |
Past listing photos
Sign in to take a closer look at how this home compares to similar homes.
Explore Flushing
Transit
| Location | Distance |
|---|---|
LIRRat Flushing Main Street | 0.23 miles |
7at Flushing–Main St | 0.32 miles |
LIRRat Mets–Willets Point | 0.53 miles |
7at Mets–Willets Point | 0.55 miles |
7at 111th St | 1.12 miles |
Similar homes
Prices shown are base rent only and don't include any fees. Visit each listing to see a complete cost breakdown.
Similar Homes looks at ad spend and other factors like location, price, and number of beds and baths.
































































































