View this home virtually
- ft²
4 rooms
2 beds
2 baths
Co-op
- Kips Bay
Resale
recorded sale
Sold on 10/23/2018
Verified by closing records
Last listed for $1,795,000
Seller's agents
This home has been saved by 20 users.
Listing by Halstead Real Estate, 1934 Broadway, New York, NY 10023 | MLS #: 17217644
Maintenance fees
$3,218/mo
Estimated payment
$12,294/mo
Legal disclaimerAll calculations are estimates provided by StreetEasy for informational purposes only. Actual amounts or financing terms may vary. Please contact your mortgage provider for specifics.Taxes
Included in maintenance fees
Tax abatement
No info
About
Seller’s agent
description
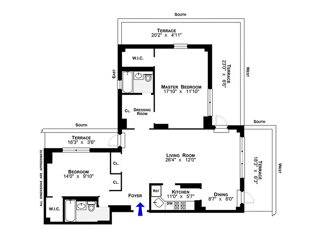
Spectacular Views from Every Window!
This sun-filled home features two bedrooms and two baths, separated in a spacious layout, and three terraces with sweeping city views. Skim-coated walls with fresh paint and newly stained hardwood floors streamline the interior, while oversized, black-framed windows allow for abundant natural light in every room. Two walk-in closets provide ample storage.
Policies
Co-purchase allowed
Gifts allowed
Parents buying allowed
Pets allowed
Cats and dogs allowed
Sublets allowed
Home features
Private outdoor space
Terrace
Building amenities
Services and facilities
Bike room
Concierge
Doorman
Full-time
Elevator
Laundry in building
Live-in super
Parking
Garage
Storage space
Wellness and recreation
Gym
Shared outdoor space
Deck
Roof deck
About the building
Victoria House
200 East 27th Street, New York, NY 10016
280 units
18 stories
1965 built
For sale
7 available units for saleFor rent
0 available units for rentDocuments and permits
View documents and permitsProperty history
- Price Change: No changes
- Days on market: 0 daysThis is the number of days the listing has been on StreetEasy.
| Date | Price | Event |
|---|---|---|
10/23/2018 | $1,625,000 | Sold by Halstead Real Estate |
12/11/2017 | $1,795,000 | No longer available |
Past listing photos
Sign in to take a closer look at how this home compares to similar homes.
Explore Kips Bay
Transit
| Location | Distance |
|---|---|
6at 28th St | 0.22 miles |
6at 23rd St | 0.27 miles |
6at 33rd St | 0.33 miles |
RWat 23rd St | 0.42 miles |
RWat 28th St | 0.49 miles |





















































































































































